Если цена в объявлении изменится, мы сразу сообщим вам об этом на электронную почту.
Нажимая «Подписаться», вы соглашаетесь с правилами.
продам дом, Долина Озер кп (Истра городской округ)19 000 000 ₽
29 мая 2025
Дата публикации объявления
Обн. 25 июля 2025
Дата обновления объявления
138 990 ₽/м²
Чистая продажа
Термин "Чистая продажа" означает, что в квартире никто не прописан или
есть куда выписаться и вывезти вещи. Это лучший вариант для покупателя.
Вероятность срыва сделки минимальна.
Этажей1
Площадь участка12,8 соток
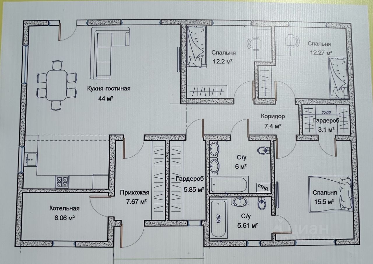
Общая площадь136,7 м2
Материал домабетонные блоки
ЭлектричествоЕсть
Газоснабжениенет
Уютный, одноэтажный дом с верандой в КП Долина Озер, вблизи Истринского водохранилища. Подходит под семейную ипотеку! Дом 2024 года постройки, выполнен из полистиролбетона, внешняя отделка- декоративная штукатурка. Фундамент - ж/б сваи, на которых установлены горизонтальные ж/б ригели. Крыша - односкатная деревянная, утеплена паро и гидроизоляцией. Кровля из профнастила. Планировка: прихожая, гардеробная, кухня-гостиная, с/у, котельная, 3 спальни ( одна из которых мастерспальня). Дом меблирован, полностью готов к круглогодичному проживаю. Окна Brusbox, профиль 70 мм пятикамерный, двойной стеклопакет. Установлена система от протечек Neptun. Коммуникации: водоснабжение- скважина, канализация- септик, отопление- электрический котел.
Уютный, одноэтажный дом с верандой в КП Долина Озер, вблизи Истринского водохранилища. Подходит под семейную ипотеку! Дом 2024 года постройки, выполнен из полистиролбетона, внешняя отделка- декоративная штукатурка. Фундамент - ж/б сваи, на которых установлены горизонтальные ж/б ригели. Крыша - односкатная деревянная, утеплена паро и гидроизоляцией. Кровля из профнастила. Планировка: прихожая, гардеробная, кухня-гостиная, с/у, котельная, 3 спальни ( одна из которых мастерспальня). Дом меблирован, полностью готов к круглогодичному проживаю. Окна Brusbox, профиль 70 мм пятикамерный, двойной стеклопакет. Установлена система от протечек Neptun. Коммуникации: водоснабжение- скважина, канализация- септик, отопление- электрический котел. Поселок охраняется, въезд через КПП, детская и спортивная площадки. В 700 м от КПП пляжи и базы отдыха Истринского водохранилища. Город Истра в 10-15 мин на автомобиле, так же модно добраться на рейсовом автобусе.