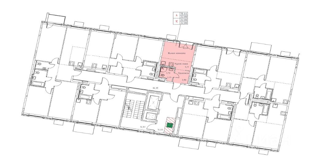
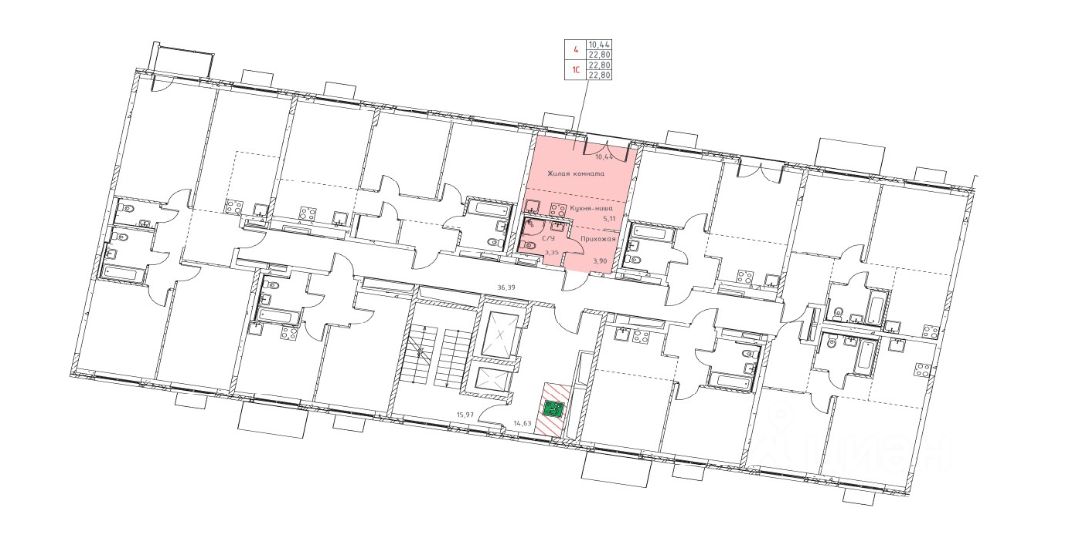
Продается студия 22,8 м. кв. в новом строящемся ЖК ''Квартал Западный'', срок сдачи: 1 кв-ал 2026 года. С перспективами и развитием данного района можно ознакомиться на сайте застройщика. Мы же хотим отметить сочетание 4-х самых важных моментов, которые останутся навсегда: хорошая экология + московская прописка + пешком к метро (м. Санино 5 мин. пешком) + расположение квартиры (комфортный 8 этаж, 6 корпус(!) и отличный вид из окна без помех). Замечательные соседи в чате.
Выбирали для себя с умом и опытом. Из-за финансовой нагрузки (покупаем здесь же бОльшую) - продаем студию. Отличный вариант для проживания, ликвидное вложение средств и удачное приобретение для арендного бизнеса. Свободная продажа по переуступке, один собственник, без долгов и проблем.


