Расположение: МО, г. Домодедово, д. Заболотье Симферопольское шоссе (М2) 19 км от МКАД. Новокаширское шоссе (М4) 24 км от МКАД
Остановка общественного транспорта 5 мин. пешком. Ж/д станция(МЦД) 20 минут, на транспорте. От станции метро Аннино 25 минут на транспорте.
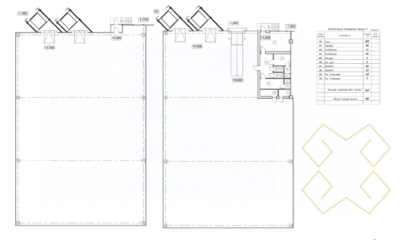
Новый производственно-складской комплекс Лайт Индастриал, абсолютно автономный блок, 864 м2. Возможно использование для производства и хранения. Стоимость: 140 000 р/м2/, с НДС, индивидуальный подход к каждому клиенту!
ХАРАКТЕРИСТИКИ ПОМЕЩЕНИЙ: Рабочая высота 8 м Шаг колон 12 х 24 Полы антипыль Нагрузка на пол 6 т./ кв. м.
Арт. 104703890 ПРОМЫШЛЕННАЯ ИПОТЕКА
Расположение: МО, г. Домодедово, д. Заболотье Симферопольское шоссе (М2) 19 км от МКАД. Новокаширское шоссе (М4) 24 км от МКАД
Остановка общественного транспорта 5 мин. пешком. Ж/д станция(МЦД) 20 минут, на транспорте. От станции метро Аннино 25 минут на транспорте.
Новый производственно-складской комплекс Лайт Индастриал, абсолютно автономный блок, 864 м2. Возможно использование для производства и хранения. Стоимость: 140 000 р/м2/, с НДС, индивидуальный подход к каждому клиенту!
ХАРАКТЕРИСТИКИ ПОМЕЩЕНИЙ: Рабочая высота 8 м Шаг колон 12 х 24 Полы антипыль Нагрузка на пол 6 т./ кв. м. Уровень пола 1,1 м Усиленная кровля - Технониколь (возможность установки климатического и вентиляционного оборудования на кровле) Доковые ворота - Hоrmann c герметизаторами и уравнительными платформами. ИНЖЕНЕРНЫЕ И ИНФРАСТРУКТУРНЫЕ РЕШЕНИЯ: Подключение электрической мощности Возможность установки климатического оборудования для мультитемпературного склада Система водоотведения увеличенного диаметра (d600) и локальные очистные сооружения Возможность подключения газа Техническая возможность дооснащения дополнительными воротами, нулевыми воротами и внешним пандусом Возможность организации встроенных помещений административно-бытового назначения. Парковка для легковых и грузовых автомобилей. БЦ на территории с офисами и кафе-столовой. Объект готов как физически так и документально!
Купить склад, склад, производство, купить помещение, купить промышленное помещение, промзоны, промышленные парки, помещение для производства, купить помещение свободного назначения, light industriаl, лайт индастриал, пром парк, промпарки, склад в Коледено, купить склад в Подольске, купить склад в Домодедово, склад А класса