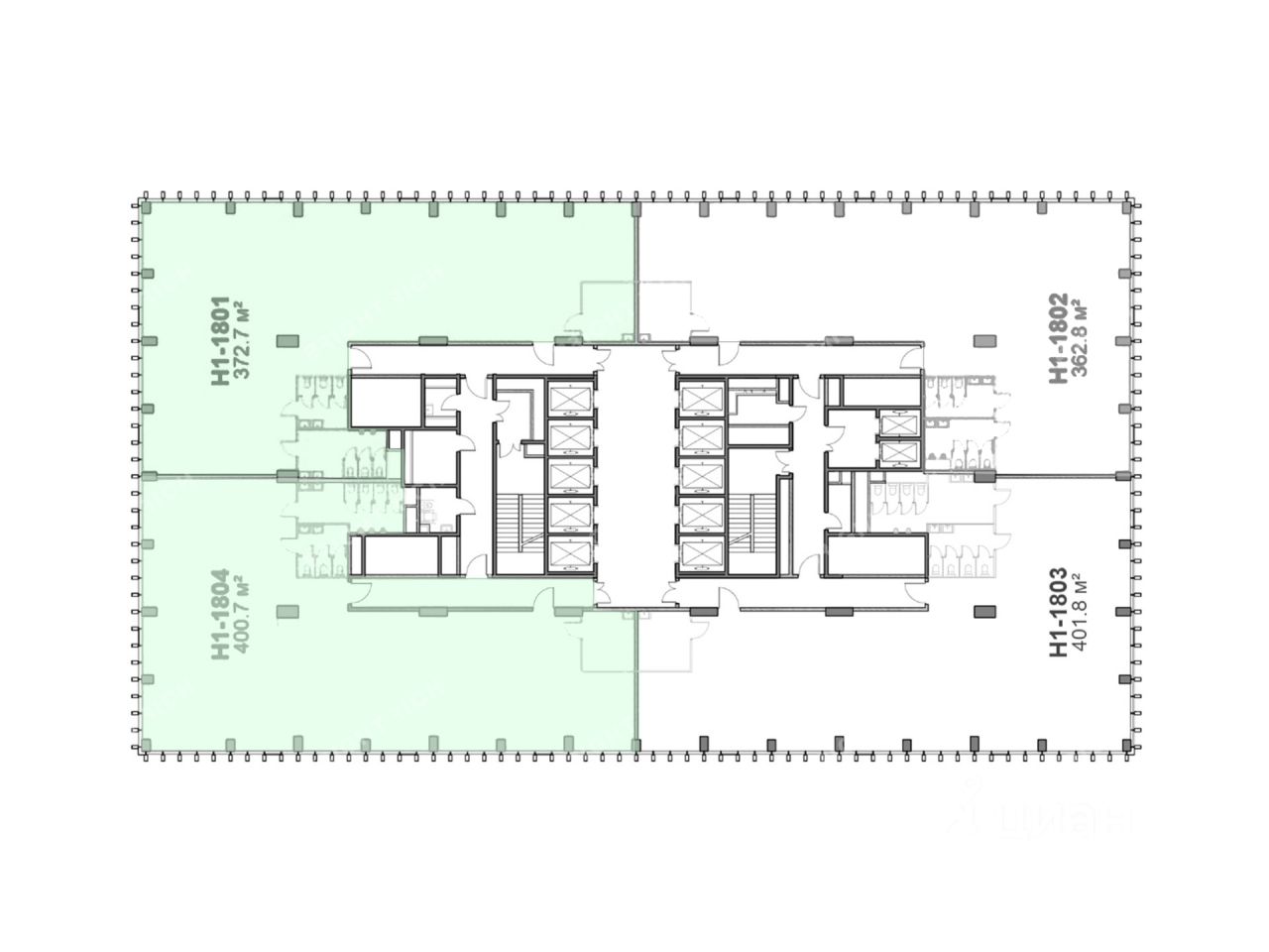
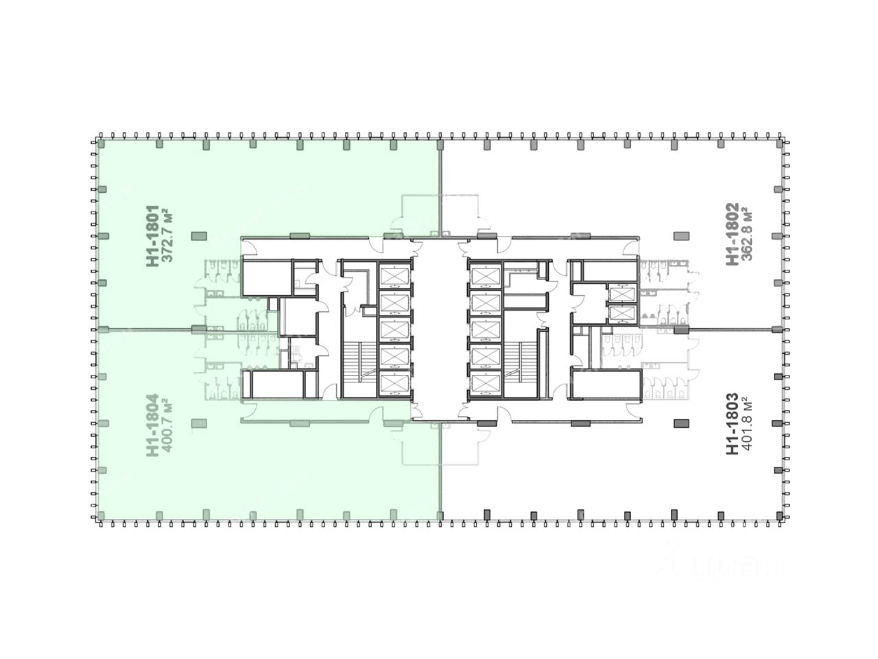
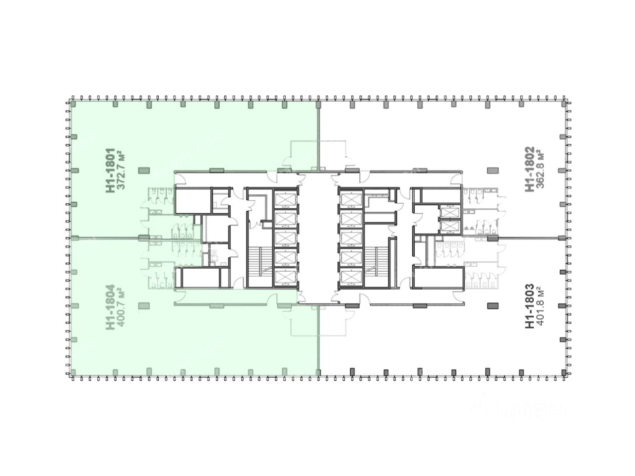
Офисное помещение 772.3 кв. м в бизнес-центре ''STONE Ходынка H1''. Прямая продажа, без комиссии.
Округ: Северный (САО). Район: Хорошевский.
Характеристики:
- Класс: A,
- Арендопригодная площадь: 30100,
- Размер типового этажа: 1700,
- Высота потолков: 3.65 м,
- Наличие лифта: Есть,
- Шаг колонн: 8.4x8.4 м.
Стоимость: 477 281 400 руб.
Оформление сделки напрямую от собственника, без комиссии.
Готовы оперативно организовать просмотр в удобное время, предоставить PDF-презентацию и план.
Точное местоположение объекта можно найти по данным координатам: 55.788125,37.533697
ID = c_1766048











