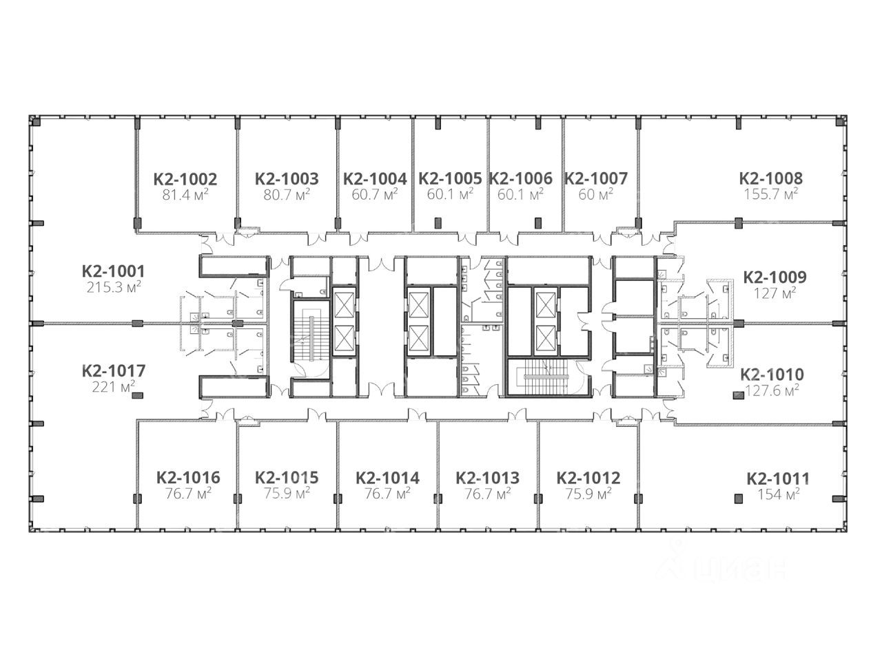
Офисное помещение 221 кв. м в бизнес-центре '' STONE Калужская К2''. Прямая продажа, без комиссии. Объект на стадии активного строительства, готовность ко въезду уточняется по запросу.
Округ: Юго-Западный (ЮЗАО). Район: Обручевский.
Характеристики: - Класс: A, - Разрешение на строительство: Да, - Арендопригодная площадь: 14700, - Код налоговой: 28, - Высота потолков: 3.65 м, - Наличие лифта: Есть, - Шаг колонн: 8.6x8.6 м.
Стоимость: 95 914 000 руб.
Финансовые условия: - В стоимость включено: НДС, - Налог: Включая НДС.
Оформление сделки напрямую от собственника, без комиссии.
Готовы оперативно организовать просмотр в удобное время, предоставить PDF-презентацию и план.
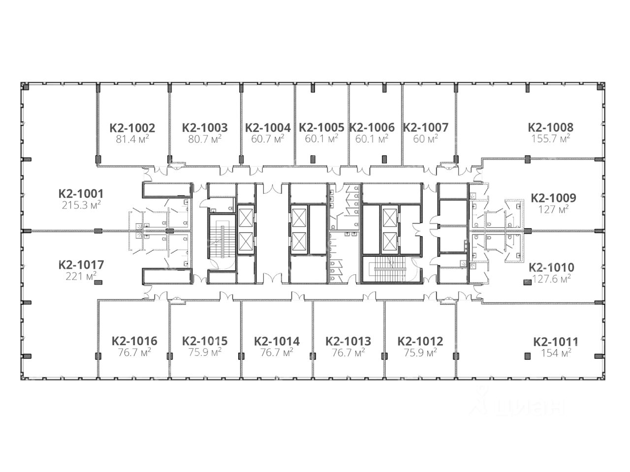
Офисное помещение 221 кв. м в бизнес-центре '' STONE Калужская К2''. Прямая продажа, без комиссии. Объект на стадии активного строительства, готовность ко въезду уточняется по запросу.
Округ: Юго-Западный (ЮЗАО). Район: Обручевский.
Характеристики: - Класс: A, - Разрешение на строительство: Да, - Арендопригодная площадь: 14700, - Код налоговой: 28, - Высота потолков: 3.65 м, - Наличие лифта: Есть, - Шаг колонн: 8.6x8.6 м.
Стоимость: 95 914 000 руб.
Финансовые условия: - В стоимость включено: НДС, - Налог: Включая НДС.
Оформление сделки напрямую от собственника, без комиссии.
Готовы оперативно организовать просмотр в удобное время, предоставить PDF-презентацию и план. Точное местоположение объекта можно найти по данным координатам: 55.658551,37.537770