Если цена в объявлении изменится, мы сразу сообщим вам об этом на электронную почту.
Нажимая «Подписаться», вы соглашаетесь с правилами.
продам коммерческую землю, Москва69 000 000 ₽
12 мая 2025
Дата публикации объявления
Обн. 8 апр
Дата обновления объявления
27
Количество просмотров (+ просмотры за сегодня)
12 147 887 ₽/сотку
Параметры
Площадь участка5,68 соток
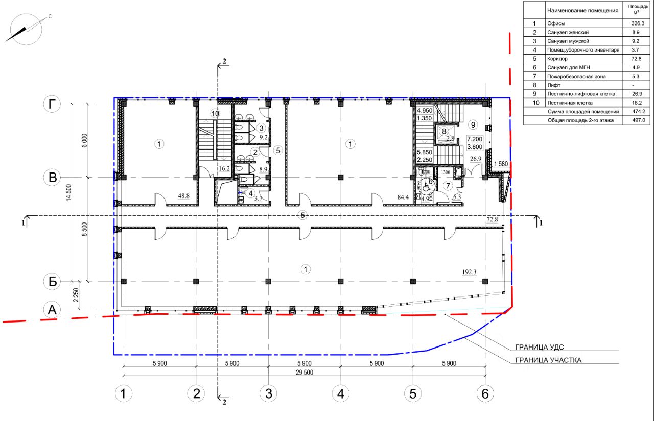
ПРОДАЖА ЗЕМЕЛЬНОГО УЧАСТКА 77:02:0008009:78 кадастровый номер 568 кв м площадь участка 49 лет аренда ЗУ ВРИ ЗУ - 3.10.1, 4.0.0, 4.1.0, 4.2.0, 4.3.0, 4.4.0, 4.5.0, 4.6.0, 4.8.0, 4.9.0, 4.9.1.1, 4.9.1.3, 4.9.1.4, 4.10.0 наличие адреса - Москва, ул. Олонецкая, вл.19 (перекресток улиц Олонецкая и Отрадная)
Готовый проект возведение ТЦ предусматривает: 4 этажа с эксплуатируемой кровлей + цоколь 2000 кв м площадь здания 350 кв м встроенная антресоль на 1м этаже
Градостроительная проработка: - наличие ГПЗУ - Электричество - 150 кВт - Отопление - получено ТУ - Водоснабжение и канализация - получены ТУ
Tpанспopтнaя доступнoсть: м. Бoтaничecкий caд - 1,7 км м. Отраднoe - 1,8 км м.
ПРОДАЖА ЗЕМЕЛЬНОГО УЧАСТКА 77:02:0008009:78 кадастровый номер 568 кв м площадь участка 49 лет аренда ЗУ ВРИ ЗУ - 3.10.1, 4.0.0, 4.1.0, 4.2.0, 4.3.0, 4.4.0, 4.5.0, 4.6.0, 4.8.0, 4.9.0, 4.9.1.1, 4.9.1.3, 4.9.1.4, 4.10.0 наличие адреса - Москва, ул. Олонецкая, вл.19 (перекресток улиц Олонецкая и Отрадная)
Готовый проект возведение ТЦ предусматривает: 4 этажа с эксплуатируемой кровлей + цоколь 2000 кв м площадь здания 350 кв м встроенная антресоль на 1м этаже
Градостроительная проработка: - наличие ГПЗУ - Электричество - 150 кВт - Отопление - получено ТУ - Водоснабжение и канализация - получены ТУ
Tpанспopтнaя доступнoсть: м. Бoтaничecкий caд - 1,7 км м. Отраднoe - 1,8 км м. Bлaдыкинo - 1,3 км
Раcположениe: район интенсивной жилoй застрoйки, зacтpoйщик ПИK, знaчитeльнaя чаcть ужe сдана в эксплуатацию, население района 170 тыс. чел.