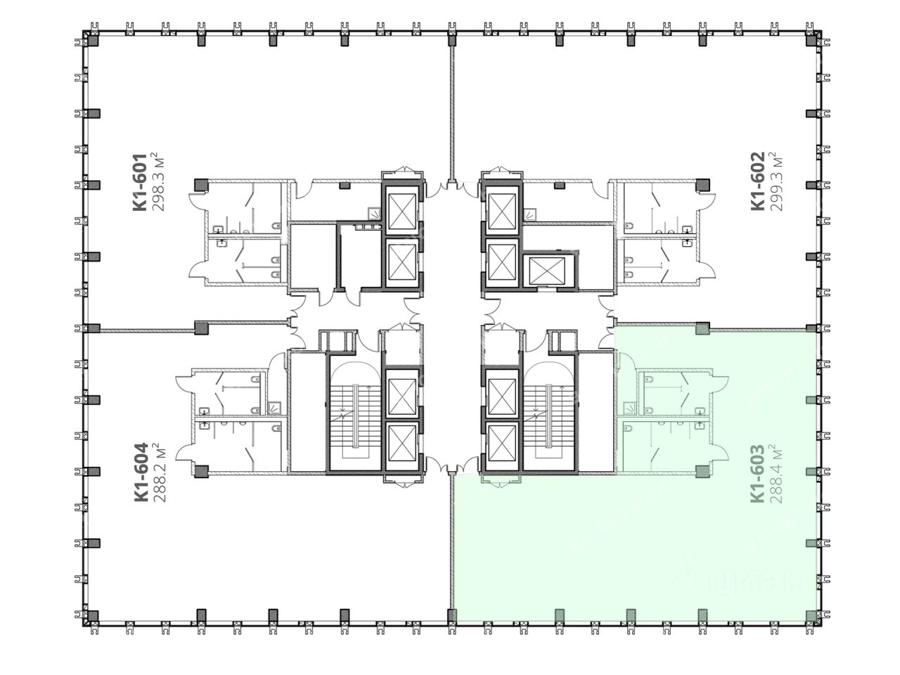
Офисное помещение 288.4 кв. м в бизнес-центре ''STONE Калужская К1''. Прямая продажа, без комиссии.
Округ: Юго-Западный (ЮЗАО). Район: Обручевский.
Характеристики:
- Класс: A,
- Разрешение на строительство: Да,
- Арендопригодная площадь: 18000,
- Код налоговой: 28,
- Размер типового этажа: 1300,
- Высота потолков: 3.65 м,
- Наличие лифта: Есть,
- Шаг колонн: 8.6x8.6 м.
Стоимость: 120 551 200 руб.
Оформление сделки напрямую от собственника, без комиссии.
Готовы оперативно организовать просмотр в удобное время, предоставить PDF-презентацию и план.
Точное местоположение объекта можно найти по данным координатам: 55.658572,37.537770
ID = c_1611531








