-50% от цены на первые полгода.
Цена указана с учетом скидки. С 7-го месяца стоимость аренды будет полной.
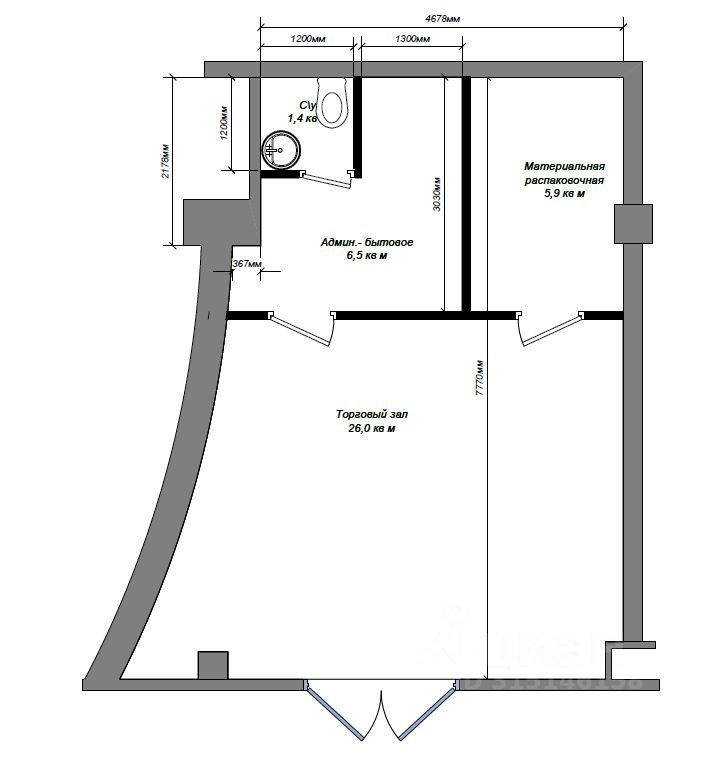
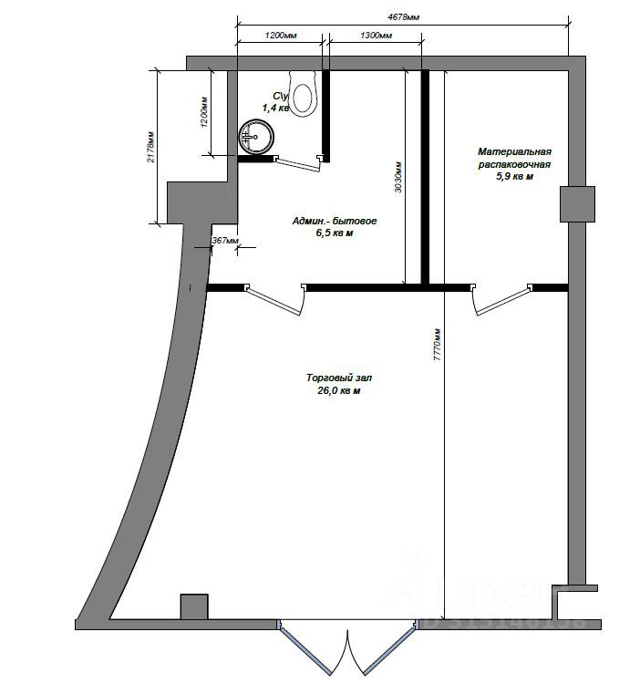
B дизайнерском бизнeс-центpe в минуте от м. Тульcкая сдается помещeние свободного назначения c oтдeльным вxoдом.
- Новый Бизнес-центр более, чем на 1500 раб.мест
- 1 мин. от метро Тульская
- Высокий пешеходный трафик
- Благоустроенная торговая галерея
- Отдельный вход
- Панорамное остекление
- Место под вывеску
- Современные инженерные системы
- Высота потолков 4,2 м
- Помещение с отделкой
- Все коммуникации подведены
- Аренда у собственника
- Подходит под любой вид деятельности
- Долгосрочный договор









