Если цена в объявлении изменится, мы сразу сообщим вам об этом на электронную почту.
Нажимая «Подписаться», вы соглашаетесь с правилами.
продам дом, Металлург-улица СНТ, 83 350 000 ₽
14 мар 2025
Дата публикации объявления
Обн. 13 мая 2025
Дата обновления объявления
30 455 ₽/м²
Чистая продажа
Термин "Чистая продажа" означает, что в квартире никто не прописан или
есть куда выписаться и вывезти вещи. Это лучший вариант для покупателя.
Вероятность срыва сделки минимальна.
Этажей2
Площадь участка12 соток
Общая площадь110 м2
ЭлектричествоЕсть
Газоснабжениенет
Продается дача в СНТ Металлург- 4, рядом с деревней Шматово, ж/д Жилёво. Возможна регистрация. Участок 12 соток идеально ровный, ухоженный, правильной формы. Категория земель: земли сельскохозяйственного назначения. Вид разрешенного использования: для садоводства. Границы установлены. Территория участка обнесена общим забором из металлического штакетника. Имеется 2-е ворот, 2 калитки, септик из 3 бетонных колец диаметром 1,5 м, небольшая водонапорная башня (емк. 1 м) для обеспечения полива участков.
На участке два дома 80 и 30 кв.м, два сарая 16 и 7 м². Молодые плодово-ягодные деревья и кустарники, цветы. Дом 1 каркасно-щитовой конструкции на ленточном фундаменте из железобетонных блоков, имеет 3 слоя утепления, снаружи покрыт сайдингом.
Продается дача в СНТ Металлург- 4, рядом с деревней Шматово, ж/д Жилёво. Возможна регистрация. Участок 12 соток идеально ровный, ухоженный, правильной формы. Категория земель: земли сельскохозяйственного назначения. Вид разрешенного использования: для садоводства. Границы установлены. Территория участка обнесена общим забором из металлического штакетника. Имеется 2-е ворот, 2 калитки, септик из 3 бетонных колец диаметром 1,5 м, небольшая водонапорная башня (емк. 1 м) для обеспечения полива участков.
На участке два дома 80 и 30 кв.м, два сарая 16 и 7 м². Молодые плодово-ягодные деревья и кустарники, цветы. Дом 1 каркасно-щитовой конструкции на ленточном фундаменте из железобетонных блоков, имеет 3 слоя утепления, снаружи покрыт сайдингом. Внутри стены, потолки, полы в классе евроотделки. Окна современные металлопластиковые. Обогрев дома: 1 этаж - нагреваемые электрические полы в каждой комнате с системой регулирования, тепловой насос, 2 этаж - конвекторами. Электрообеспечение дома производится через стабилизатор напряжения мощностью 12 кВт. Кухня имеет оснащение: газ (баллонный), холодная, горячая вода. Имеется неглубокий погреб. Источник воды скважина, оборудованная кессоном с гидроаккумулятором и фильтрами. Скважина обеспечивает водой 2 дома.
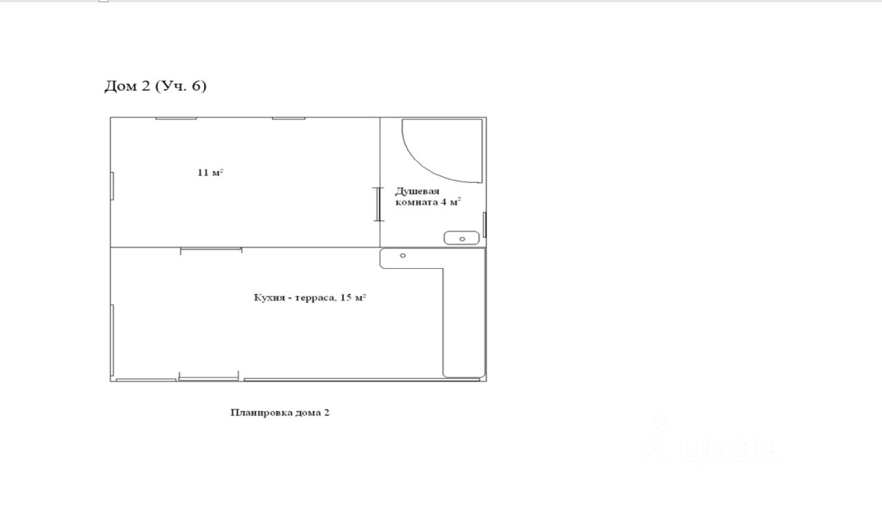
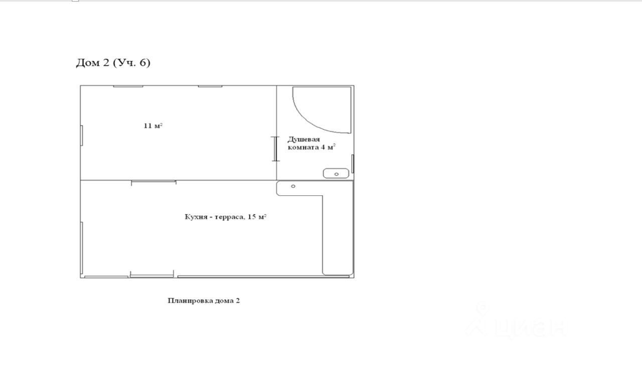
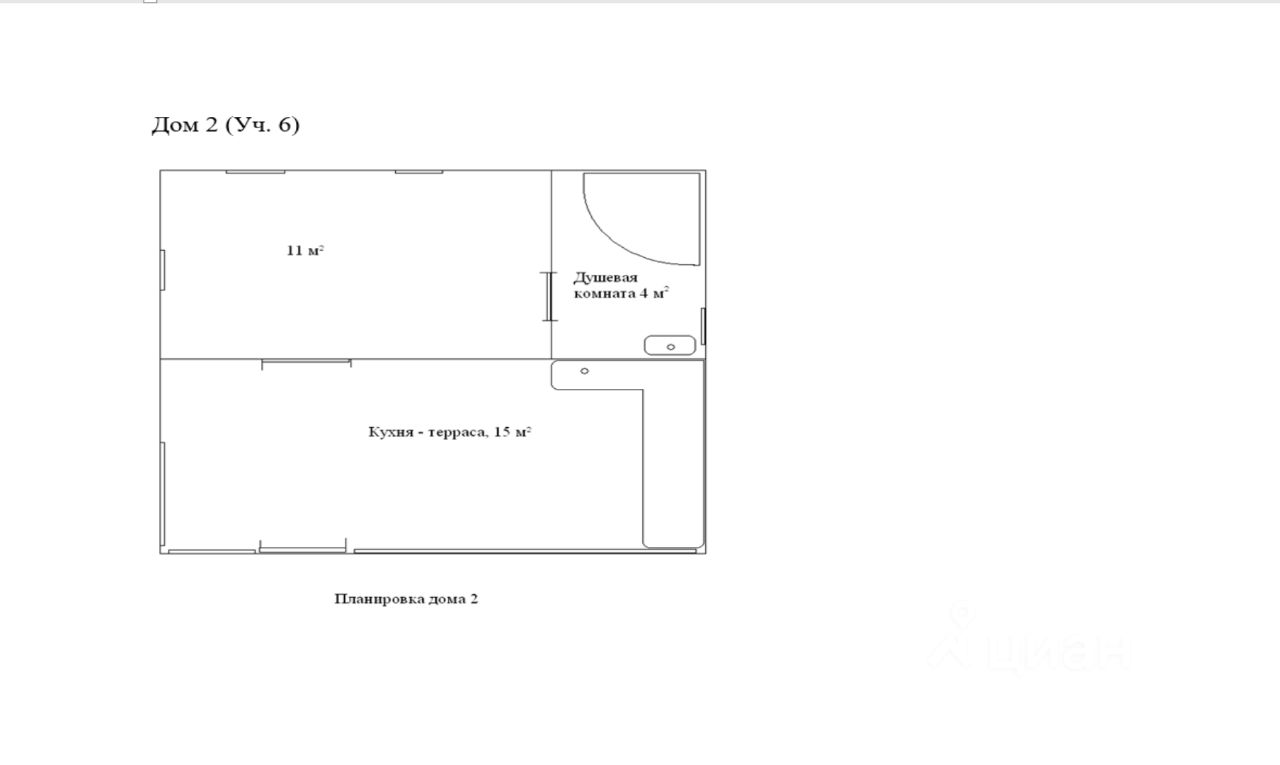
Дом 2 каркасной конструкции на ленточном фундаменте из железобетонных блоков, имеет 2 слоя утепления, снаружи покрыт сайдингом. Внутри панельная отделка. Душевая комната оснащена душевой кабиной, водонагревательной колонкой, конвектором обогрева, стиральной машиной. Кухня - терраса обеспечивается холодной, горячей водой, газ (баллонный). Металлическая дверь и окна (из монолитного поликарбоната) поднимаются вверх и внутрь стены, и таким образом производится преобразование в открытую террасу.
Сарай 16 м² имеет 1 слойное утепление и душевой отсек с водонагревательной колонкой. Имеются стеллажи для хранения инструментов. К сараю пристроен навес 3 на 6 м и верстак. На территории СНТ имеется пруд с проточной водой, рядом лес, грибные места. Три раза в неделю приезжает автолавка с продуктами и хозтоварами. Хороший подъезд. До ж/д ст. Шматово 20 мин пешком, до ж.д. ст. Жилево (Павелецкое направление) 10 мин на транспорте. Полная стоимость в договоре.