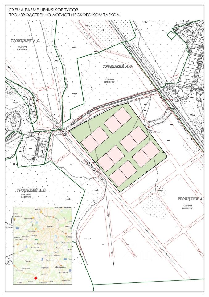
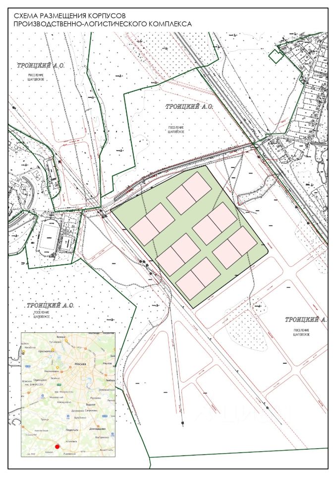
А КЛАСС. 12 блоков по 13 500м2 возможен КРОСС ДОК, а так же изменения в проекте под Ваши нужды Презентабельно, Качественно, Удобно. Парковки для легкового транспорта, грузовиков. Проверенные, надежные материалы и узлы: Ворота Hormann, Антивандальные двери Hormann, Антивандальные стеновые плитки, качественные сэндвич панели с надежным замком и хорошим клеевым составом и тд. Персональная котельная, зарядная и ТП. Абк оборудованы сплит системами. Удобная и грамотная планировка. Автоматическая пропускная система, ухоженная облагороженная территория с регулярным озеленением и тд.
А КЛАСС. 12 блоков по 13 500м2 возможен КРОСС ДОК, а так же изменения в проекте под Ваши нужды Презентабельно, Качественно, Удобно. Парковки для легкового транспорта, грузовиков. Проверенные, надежные материалы и узлы: Ворота Hormann, Антивандальные двери Hormann, Антивандальные стеновые плитки, качественные сэндвич панели с надежным замком и хорошим клеевым составом и тд. Персональная котельная, зарядная и ТП. Абк оборудованы сплит системами. Удобная и грамотная планировка. Автоматическая пропускная система, ухоженная облагороженная территория с регулярным озеленением и тд.
Сухой отапливаемый с персональной регулировкой температуры до +24 Возможны вариации с мульти температурными и низкотемпературными складами Площадь комплекса : 162 000 м2. Офисные площади: есть. Рабочая высота потолков: 12-14 м. Тип пола: бетонный пол с антипылевым покрытием и нагрузкой 9 тонн/м2. Уровень пола: 1.2 м. Система автоматического пожаротушения: cпринклерная. Пожарная сигнализация и система дымоудаления. Количество доков: 1 на 750 м2. Рампа, Пандус, доковые и ворота в ноль. Шаг колонн: 12 х 24 м. Есть Электрические мощности.
Срок сдачи апрель- май 2025г Без комиссии, процентов и надбавок. Звоните, оперативно организуем показ в удобную дату и ответим на все интересующие Вас вопросы.