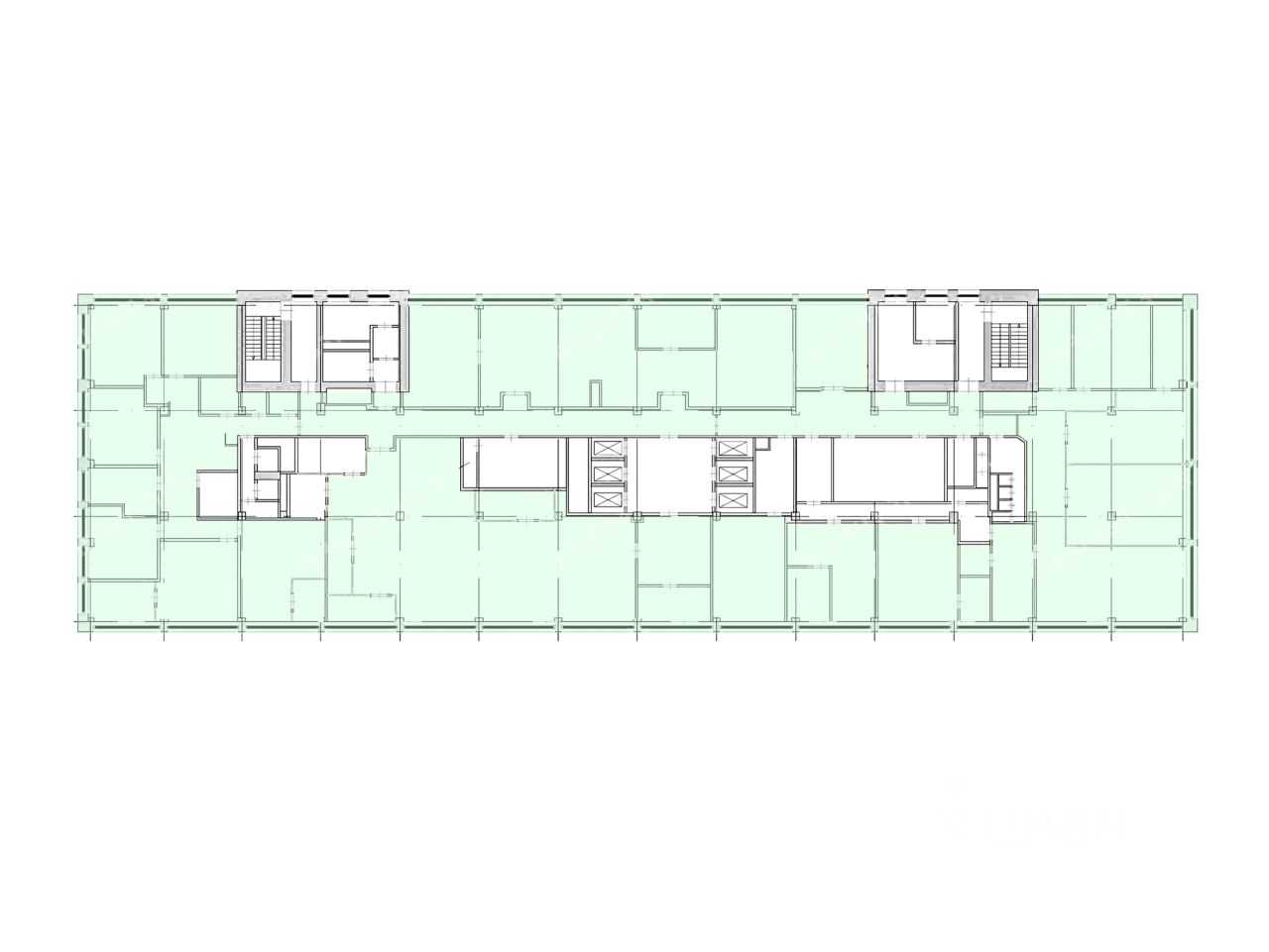
Характеристики: - Класс: B+, - Код налоговой: 15, - Арендопригодная площадь: 14000, - Наличие лифта: Есть, - Кол-во мест наземного паркинга: 60, - Кол-во мест подземного паркинга: 90.
Арендная ставка: 38 000.4 руб./кв. м в год.
Финансовые условия: - В стоимость включено: OPEX, НДС, - Оплачивается отдельно: Интернет, Коммунальные услуги, Телефония, Уборка, Электроэнергия, - Налог: Включая НДС.
Без комиссии и скрытых платежей для арендатора.
Готовы оперативно организовать просмотр в удобное время, предоставить PDF-презентацию и план. Точное местоположение объекта можно найти по данным координатам: 55.805756,37.588979