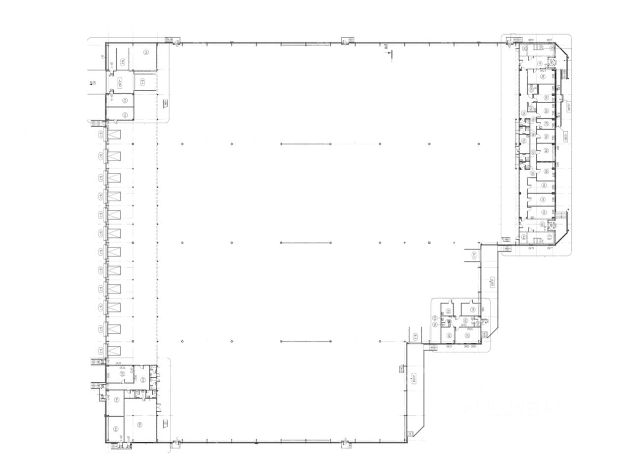
Складское помещение 11 623.9 кв. м в ''Внуково 2''. Прямая продажа, без комиссии. Объект на стадии активного строительства, готовность ко въезду уточняется по запросу.
Направление: Юго-Запад. Шоссе: Боровское, Киевское. Округ: Новомосковский (НАО). Расстояние от МКАД: 22 км.
Характеристики: - Класс: A, - Ворота: Доки, - Тип склада: Сухой склад, - Высота потолков: 12 м, - Нагрузка на пол: 9 т/ кв.м, - Система пожаротушения: Спринклерная, - Тип пола: С антипылевым покрытием, - Пожарная сигнализация: Да, - Уровень пола: 1.2 м, - Шаг колонн: 12x24 м.
Стоимость: 1 701 607 200 руб.
Финансовые условия: - Оплачивается отдельно: НДС, - Налог: Включая НДС.
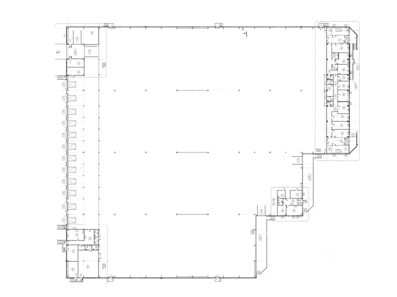
Складское помещение 11 623.9 кв. м в ''Внуково 2''. Прямая продажа, без комиссии. Объект на стадии активного строительства, готовность ко въезду уточняется по запросу.
Направление: Юго-Запад. Шоссе: Боровское, Киевское. Округ: Новомосковский (НАО). Расстояние от МКАД: 22 км.
Характеристики: - Класс: A, - Ворота: Доки, - Тип склада: Сухой склад, - Высота потолков: 12 м, - Нагрузка на пол: 9 т/ кв.м, - Система пожаротушения: Спринклерная, - Тип пола: С антипылевым покрытием, - Пожарная сигнализация: Да, - Уровень пола: 1.2 м, - Шаг колонн: 12x24 м.
Стоимость: 1 701 607 200 руб.
Финансовые условия: - Оплачивается отдельно: НДС, - Налог: Включая НДС.
Оформление сделки напрямую от собственника, без комиссии.
Готовы оперативно организовать просмотр в удобное время, предоставить PDF-презентацию и план. Точное местоположение объекта можно найти по данным координатам: 55.579352,37.191625