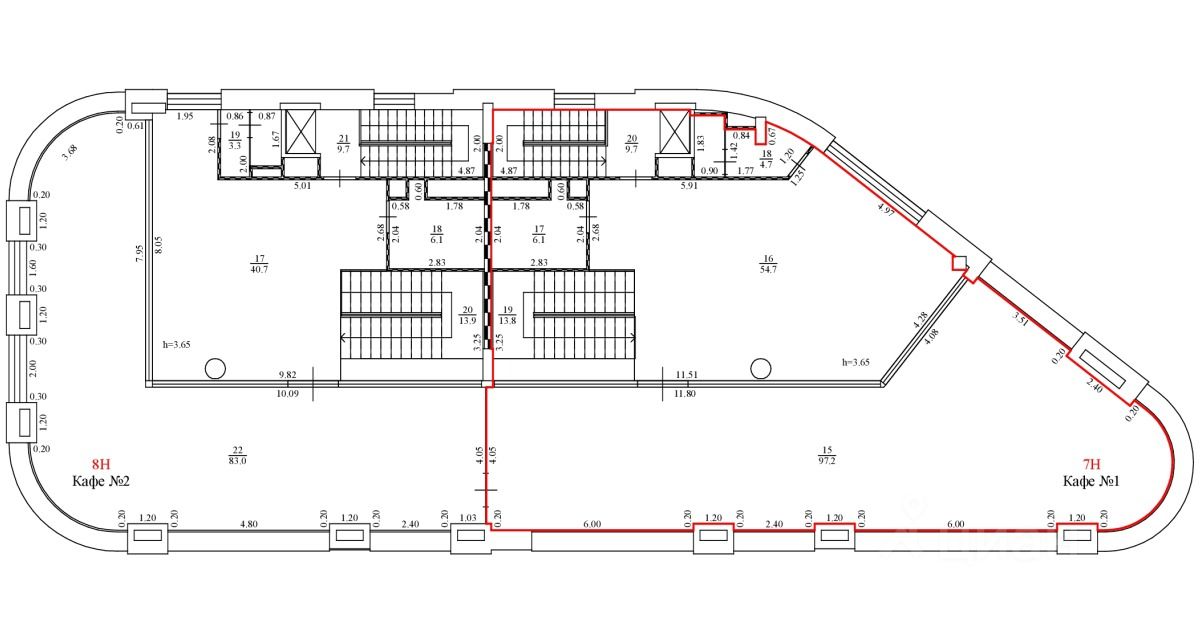
Продажа здания (по документам встроенно-пристроенные помещения, два кадастровых номера), расположенном на территории клубного ЖК ''Primavera'', квартал ''Rossini'', фасад здания смотрит на церковь и прогулочную набережную вдоль реки. Здание введено в эксплуатацию в мае 2024 г., на помещения получены кадастровые номера. Вход в помещения свободный, с набережной.
Общая площадь - 668,2 м2 (1 этаж - 326,6 м2, 2 этаж - 166,1 м2, эксплуатируемая кровля для размещения летней веранды 180,2 м2). Высота потолков: 1 этаж - 4,5 м, 2 этаж - 4 м, витринное остекление, 6 отдельных входных группы. Электрическая мощность 60 кВ (возможно увеличение), есть возможность размещения летней веранды на эксплуатируемой кровле и вдоль фасада.
Продажа здания (по документам встроенно-пристроенные помещения, два кадастровых номера), расположенном на территории клубного ЖК ''Primavera'', квартал ''Rossini'', фасад здания смотрит на церковь и прогулочную набережную вдоль реки. Здание введено в эксплуатацию в мае 2024 г., на помещения получены кадастровые номера. Вход в помещения свободный, с набережной.
Общая площадь - 668,2 м2 (1 этаж - 326,6 м2, 2 этаж - 166,1 м2, эксплуатируемая кровля для размещения летней веранды 180,2 м2). Высота потолков: 1 этаж - 4,5 м, 2 этаж - 4 м, витринное остекление, 6 отдельных входных группы. Электрическая мощность 60 кВ (возможно увеличение), есть возможность размещения летней веранды на эксплуатируемой кровле и вдоль фасада.
В районе полуострова Покровское- Стрешнево при полном заселении будет проживать 80 000 человек + сотрудники и посетители офисного кластера Ростех. ( В Ростех закрытый контур, сторонних арендаторов не будет).
Цена продажи 350 920 000 рублей. Продажа по уступке ДДУ.