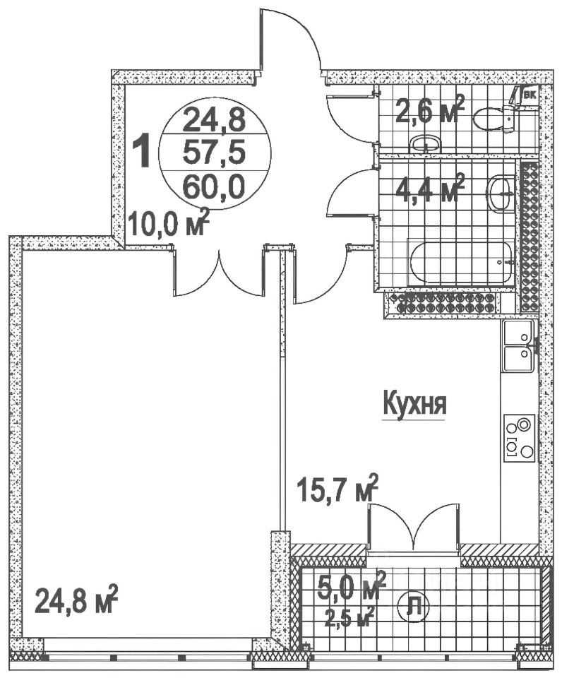
Предлагается к аренде однокомнатная квартира в ЖК бизнес-класса Квартал 38А на Ленинском проспекте. В квартире никто не жил, сдается впервые. Ремонт выполнен по индивидуальному дизайнерскому проекту, вся мебель и техника новые! Благоустроенный двор, детские и спортивные площадки. Рядом магазины, фитнес-клубы премиум-класса, кафе, салоны красоты, ТРЦ РИО Ленинский, детские клубы, школы и детские сады. Для прогулок и семейного отдыха в шаговой доступности Воронцовский парк и Юго-Западный лесопарк.
Предоплата за 1 месяц
Залог 150 000 ₽

































