Сдается впервые. Предложение от собственника. Только на длительный срок.
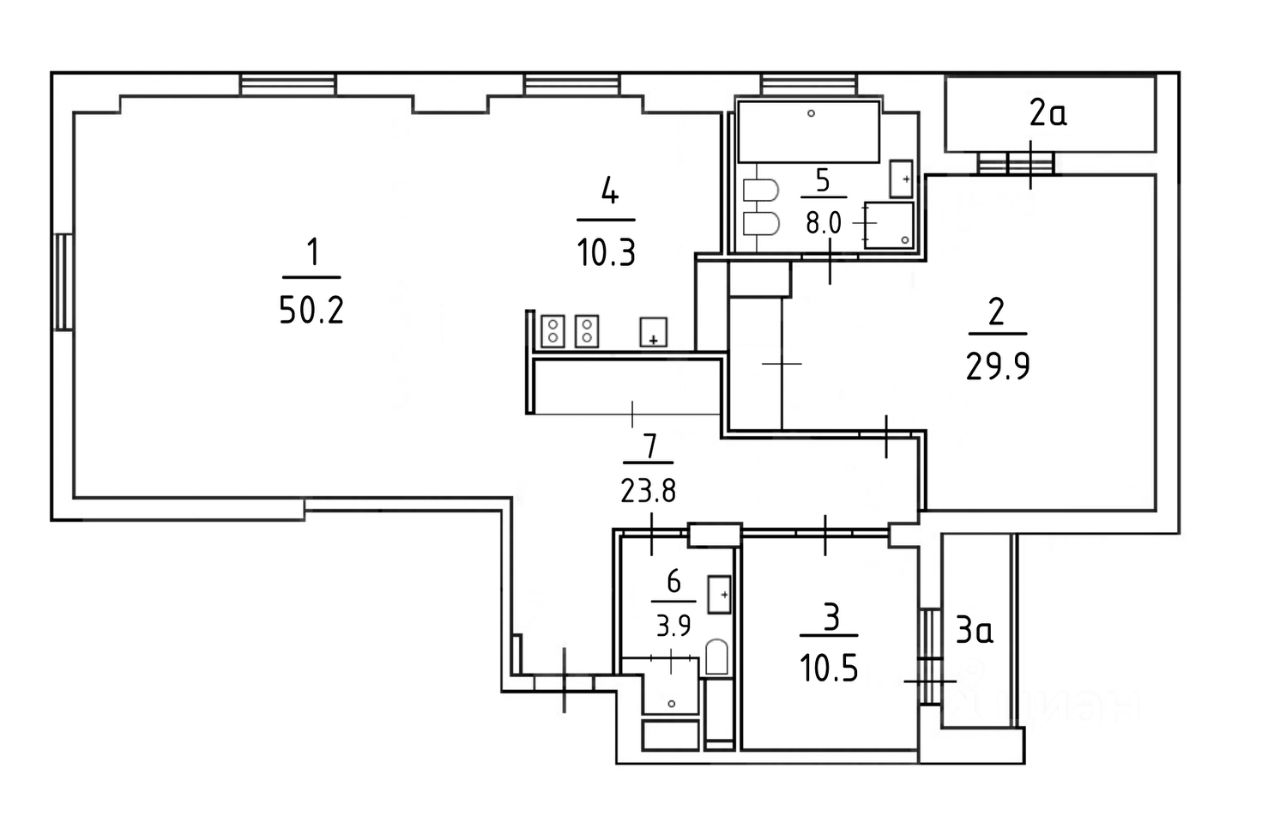
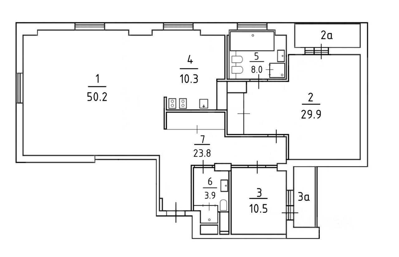
3-х комнатная квартира общей площадью 136,6 кв.м. (без учета балконов) в ЖК ''Шуваловский''. В квартире выполнен ремонт премиального уровня, укомплектована мебелью и бытовой техникой. В гостиной предусмотрен камин, 2 кондиционера в зоне кухни-гостиной и в мастер-спальне, кухня Miele - посудомоечная машина, гриль, большой холодильник, духовой шкаф, микроволновая печь.
Планировка представляет из себя следующее решение - прихожая, гостевой санузел с душем, просторная зона кухни-гостиной, спальня со своей ванной комнатой и балконом, вторая комната с балконом. Окна квартиры ориентированы на три стороны света.
Сдается впервые. Предложение от собственника. Только на длительный срок.
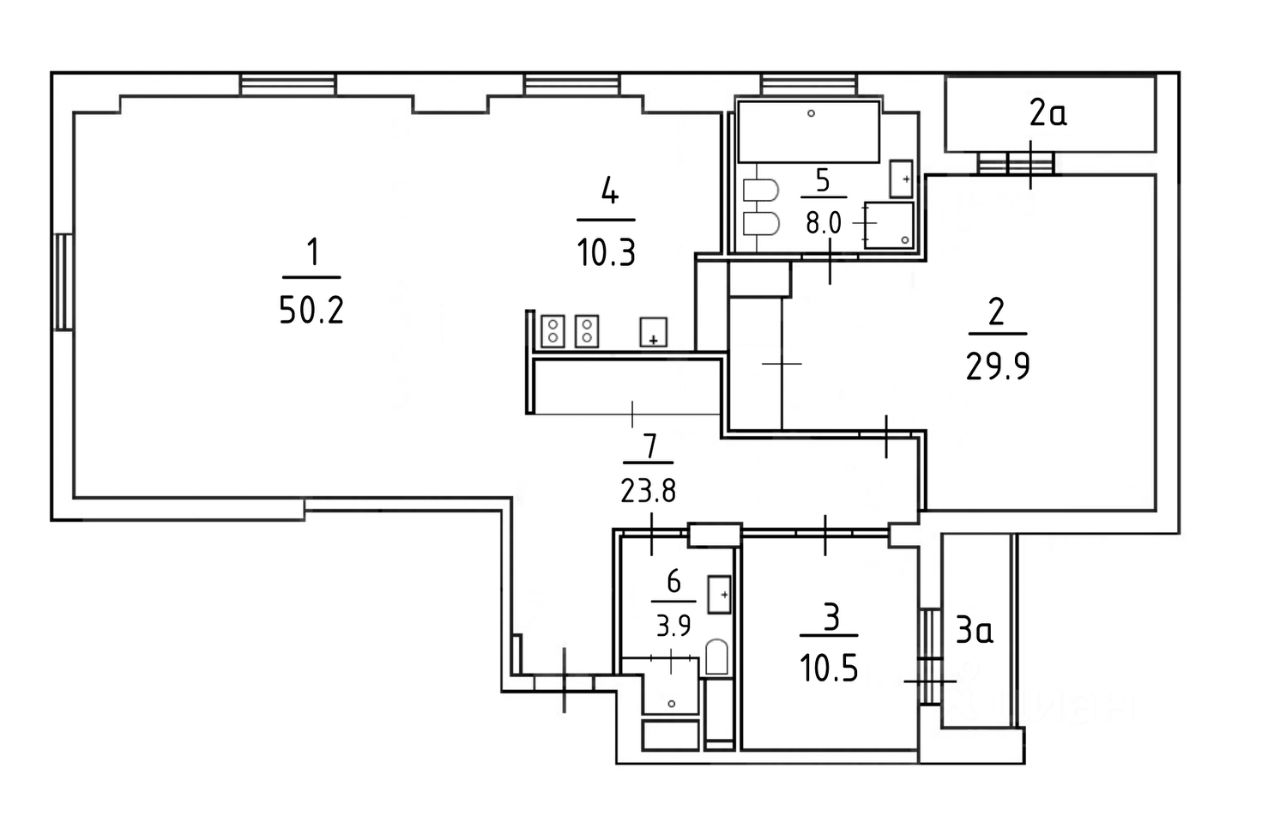
3-х комнатная квартира общей площадью 136,6 кв.м. (без учета балконов) в ЖК ''Шуваловский''. В квартире выполнен ремонт премиального уровня, укомплектована мебелью и бытовой техникой. В гостиной предусмотрен камин, 2 кондиционера в зоне кухни-гостиной и в мастер-спальне, кухня Miele - посудомоечная машина, гриль, большой холодильник, духовой шкаф, микроволновая печь.
Планировка представляет из себя следующее решение - прихожая, гостевой санузел с душем, просторная зона кухни-гостиной, спальня со своей ванной комнатой и балконом, вторая комната с балконом. Окна квартиры ориентированы на три стороны света.
Квартал Шуваловский расположен в районе Ломоносовского проспекта в непосредственной близости от МГУ. Насчитывает 8 корпусов, каждый из которых со своей закрытой территорией. Во дворе каждого корпуса предусмотрены детские площадки, На первых этажах предусмотрены коммерческие помещения, где есть вся действующая инфраструктура. На территории функционируют - школа с англоязычным уклоном, детский сад, медицинское учреждение, отделения банков, два супермаркета, кафе, рестораны, СПА-центр, химчистка и аптека. Для автомобилистов предусмотрен подземный паркинг.
Условия аренды: договор аренды на 11 месяцев, оплата первый месяц + страховой депозит (с животными страховой депозит будет обсуждаться индивидуально), коммунальные расходы оплачивает арендатор (вода и электричество, + интернет), рассматриваем платежеспособных, порядочных, чистоплотных и ответственных арендаторов, желательно семью с детьми. Животные обсуждаются.
Показ по предварительной договоренности, звоните для назначения даты и времени.