сдам офисное помещение, Станиславского, 21 ст318 000 000 ₽ в месяц
10 ноя 2024
Дата публикации объявления
Обн. вчера
Дата обновления объявления
3
Количество просмотров (+ просмотры за сегодня)
Спецпредложение
Турбо x8
9160 ₽/м² в месяц
Параметры
Общая площадь1965 м2
Этаж5
Год постройки1913
БЕЗ КОМИССИИ! Прямая аренда от собственника!
В ЦАО в бизнес-центре на м. Таганская сдаются в долгосрочную аренду от 3-х лет офисы. БЦ класс В+. Историческое место, современный деловой комплекс, кирпичное здание в стиле Loft.
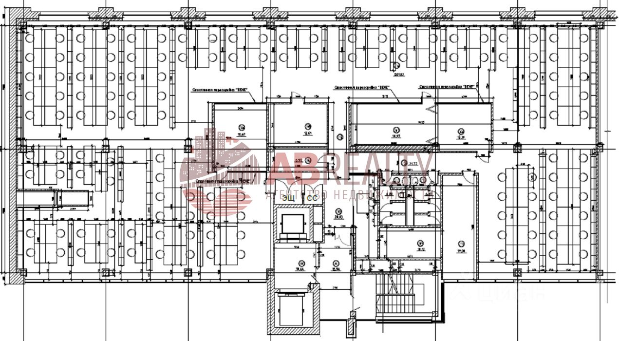
2 этаж. Офис 865 кв.м со своими санузлами и кухонной зоной. Планировки смешанные: ресепшн, зоны open-space, кабинеты, переговорные, серверные, склад, кладовая, лаунж-зона, кухня, кофе-поинт.
5 этаж Сервисные офисы 950 и 1015 кв.м - с мебелью, техникой, услугами, все налоги и платежи включены. Офис 950 кв.м рассчитан на 84 рм. Офис 1015 кв.м рассчитан на 146-150 рм.
- Панорамные окна. Доступ 24/7. - Офисы полностью готовы к въезду. - Провайдеры комплекса: Вымпелком, МТС, Эквант.
БЕЗ КОМИССИИ! Прямая аренда от собственника!
В ЦАО в бизнес-центре на м. Таганская сдаются в долгосрочную аренду от 3-х лет офисы. БЦ класс В+. Историческое место, современный деловой комплекс, кирпичное здание в стиле Loft.
2 этаж. Офис 865 кв.м со своими санузлами и кухонной зоной. Планировки смешанные: ресепшн, зоны open-space, кабинеты, переговорные, серверные, склад, кладовая, лаунж-зона, кухня, кофе-поинт.
5 этаж Сервисные офисы 950 и 1015 кв.м - с мебелью, техникой, услугами, все налоги и платежи включены. Офис 950 кв.м рассчитан на 84 рм. Офис 1015 кв.м рассчитан на 146-150 рм.
- Панорамные окна. Доступ 24/7. - Офисы полностью готовы к въезду. - Провайдеры комплекса: Вымпелком, МТС, Эквант. - Центральные системы вентиляции и кондиционирования. - Системы контроля доступа и видеонаблюдения. - Пропускная система. - Наземная и подземная парковки на 349 м/м. - Развитая инфраструктура: фитнес-центр, рестораны, кафе.
Локация: 5-10 мин. пешком до станций м. Таганская, м. Марксистская, м. Площадь Ильича. Удобные заезды - Садовое кольцо, набережная реки Яуза.
Прямой договор с собственником! БЕЗ скрытых платежей и комиссий! Цены указаны с учетом НДС и эксплуатационных расходов. Предоставляется юридический адрес, арендные каникулы. Звоните и записывайтесь на просмотр!