Если цена в объявлении изменится, мы сразу сообщим вам об этом на электронную почту.
Нажимая «Подписаться», вы соглашаетесь с правилами.
продам торговые площади, Беговая, 1141 500 000 ₽
1 ноя 2024
Дата публикации объявления
Обн. 7 мая
Дата обновления объявления
6
Количество просмотров (+ просмотры за сегодня)
525 982 ₽/м²
Параметры
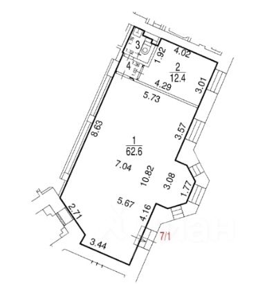
Общая площадь78,9 м2
Этаж1
Отдельный входесть
Продается торговое помещение общей площадью 78.9 кв.м. Отличная видимость и транспортная доступность, хорошая проходимость, 1 линия домов. Отдельный вход с улицы, витринные эркерные окна, потолки 3,05 м, . В настоящий момент помещение свободно