сдам офисное помещение, Новохохловская, 295 821 666 ₽ в месяц
25 окт 2024
Дата публикации объявления
Обн. вчера
Дата обновления объявления
4
Количество просмотров (+ просмотры за сегодня)
2916 ₽/м² в месяц
Параметры
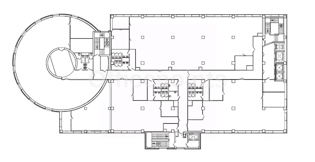
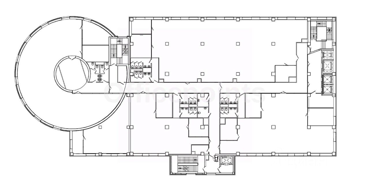
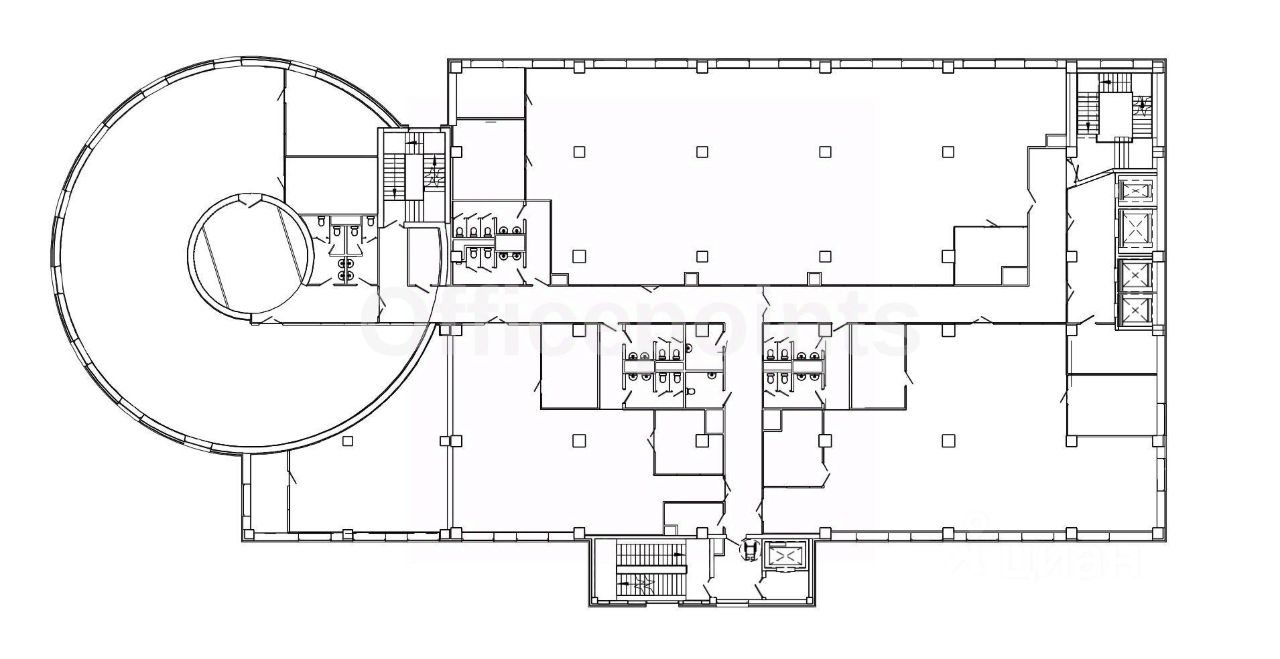
Общая площадь1996 м2
Этаж9
Год постройки2026
Сдается в аренду офисное помещение на 9 этаже в бизнес-центре Ринг Парк, В класса, который находится по адресу: ул. Новохохловская, д. 29. Без комиссии для Арендатора!
ЛОКАЦИЯ:
Пешая доступность от станций метро Новохохловская, Нижегородская.
Удобный выезд на ТТК, Волгоградский и Рязанский проспекты, а также шоссе Энтузиастов.
ПОМЕЩЕНИЕ:
В помещении выполнена отделка в стиле лофт, смешанная планировка.
Ввод в эксплуатацию здания - 3 квартал 2026 года.
Центральная система кондиционирования и приточно-вытяжная система вентиляции.
В наличии наземная парковка (8 000 руб. в месяц за м/место).
Арендные каникулы и ставка подлежат обсуждению.
Сдается в аренду офисное помещение на 9 этаже в бизнес-центре Ринг Парк, В класса, который находится по адресу: ул. Новохохловская, д. 29. Без комиссии для Арендатора!
ЛОКАЦИЯ:
Пешая доступность от станций метро Новохохловская, Нижегородская.
Удобный выезд на ТТК, Волгоградский и Рязанский проспекты, а также шоссе Энтузиастов.
ПОМЕЩЕНИЕ:
В помещении выполнена отделка в стиле лофт, смешанная планировка.
Ввод в эксплуатацию здания - 3 квартал 2026 года.
Центральная система кондиционирования и приточно-вытяжная система вентиляции.
В наличии наземная парковка (8 000 руб. в месяц за м/место).
Арендные каникулы и ставка подлежат обсуждению.
Звоните, отвечаем по будням с 09:00 до 18:00, а в другое время передадим Ваш контакт нашему менеджеру!