Если цена в объявлении изменится, мы сразу сообщим вам об этом на электронную почту.
Нажимая «Подписаться», вы соглашаетесь с правилами.
продам коттедж, Залесье340 000 000 ₽
2 окт 2024
Дата публикации объявления
Обн. 18 апр
Дата обновления объявления
618 182 ₽/м²
Чистая продажа
Термин "Чистая продажа" означает, что в квартире никто не прописан или
есть куда выписаться и вывезти вещи. Это лучший вариант для покупателя.
Вероятность срыва сделки минимальна.
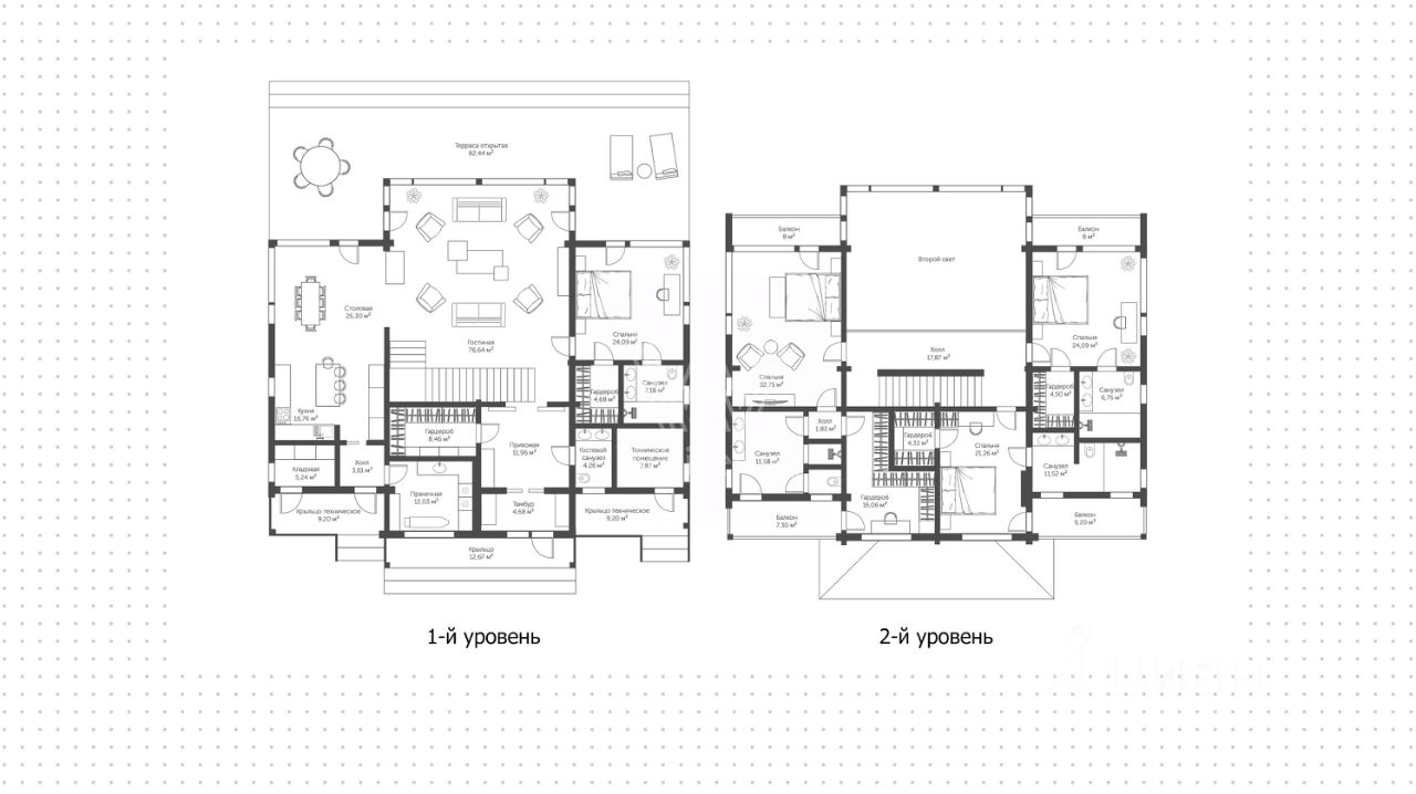
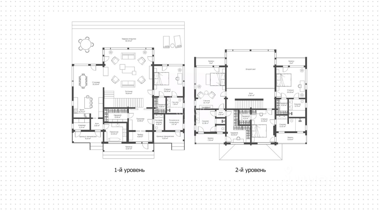
Этажей2
Площадь участка25,4 соток
Общая площадь550 м2
Материал домадерево
Залесье. Загородный дом по проекту ''Весна'' площадью 550 м² расположен на участке 25,4 сотки в реликтовом лесу. Фасад здания с большими панорамными окнами выполнен из клееного бруса увеличенного размера и декорирован подсветкой. В отделке современного интерьера сохранена фактура дерева, создающая домашний уют. Резиденция включает 4 спальни, просторную гостиную с камином и вторым светом, кухню-столовую и террасу, на которой можно обустроить зону барбекю. На участке выполнен ландшафтный дизайн в стиле английского сада.
Поэтажное описание 1-й уровень: тамбур, прихожая, гардеробная, гостевой санузел, гостиная, спальня с гардеробной и санузлом, кухня-столовая, прачечная, кладовая, техническое помещение, терраса.
Залесье. Загородный дом по проекту ''Весна'' площадью 550 м² расположен на участке 25,4 сотки в реликтовом лесу. Фасад здания с большими панорамными окнами выполнен из клееного бруса увеличенного размера и декорирован подсветкой. В отделке современного интерьера сохранена фактура дерева, создающая домашний уют. Резиденция включает 4 спальни, просторную гостиную с камином и вторым светом, кухню-столовую и террасу, на которой можно обустроить зону барбекю. На участке выполнен ландшафтный дизайн в стиле английского сада.
Поэтажное описание 1-й уровень: тамбур, прихожая, гардеробная, гостевой санузел, гостиная, спальня с гардеробной и санузлом, кухня-столовая, прачечная, кладовая, техническое помещение, терраса.
2-й уровень: холл, спальня с гардеробной, санузлом и 2-мя балконами, 2 спальни