Если цена в объявлении изменится, мы сразу сообщим вам об этом на электронную почту.
Нажимая «Подписаться», вы соглашаетесь с правилами.
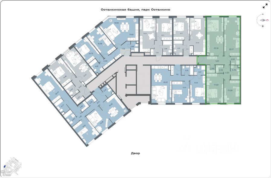
продам 3-к, Годовикова, 11 корп. 541 810 640 ₽
13 сен 2024
Дата публикации объявления
Обн. сегодня
Дата обновления объявления
8
Количество просмотров (+ просмотры за сегодня)
Топ
Турбо x4
415 200 ₽/м²
Чистая продажа
Термин "Чистая продажа" означает, что в квартире никто не прописан или
есть куда выписаться и вывезти вещи. Это лучший вариант для покупателя.
Вероятность срыва сделки минимальна.
Продаётся 3-комнатная квартира общей площадью 100.70 кв. м на 7 этаже жилого квартала бизнес-класса iLove. Это просторная, светлая квартира подойдет для большой семьи, в ней три полноценные спальни и кухня-гостиная. В квартире предусмотрено 2 гардеробных комнаты и 2 санузла один в мастер-блоке и один гостевой. Широкоформатные окна в квартире выходят на разные стороны, из них открываются отличные виды на город и на Останкинскую телебашню. Квартира продается без отделки.
Жилой квартал iLove расположен в тихом зеленом районе Останкино. До метро ''Алексеевская'' всего 10 минут пешком, а на автомобиле можно добраться до ТТК за 6 минут.
iLove состоит из 5 корпусов переменной этажности, каждый корпус которых имеет вертикальные высотные и среднеэтажные горизонтальные фасады.
Продаётся 3-комнатная квартира общей площадью 100.70 кв. м на 7 этаже жилого квартала бизнес-класса iLove. Это просторная, светлая квартира подойдет для большой семьи, в ней три полноценные спальни и кухня-гостиная. В квартире предусмотрено 2 гардеробных комнаты и 2 санузла один в мастер-блоке и один гостевой. Широкоформатные окна в квартире выходят на разные стороны, из них открываются отличные виды на город и на Останкинскую телебашню. Квартира продается без отделки.
Жилой квартал iLove расположен в тихом зеленом районе Останкино. До метро ''Алексеевская'' всего 10 минут пешком, а на автомобиле можно добраться до ТТК за 6 минут.
iLove состоит из 5 корпусов переменной этажности, каждый корпус которых имеет вертикальные высотные и среднеэтажные горизонтальные фасады. Из окон большинства квартир открываются прекрасные виды на Останкино.
Для удобства жильцов предусмотрены подземная и гостевая парковки, а внутренняя территория комплекса свободна от машин. Благоустроенный двор с детскими и спортивными площадками и дизайнерский подъезд с панорамными окнами создают приятную атмосферу для жизни. В проекте реализуется концепция ''город в городе'' вся необходимая инфраструктура расположена на первых этажах зданий, запроектирован комьюнити-центр (общественное пространство для отдыха и досуга жителей квартала). В 2025 году на территории жилого комплекса запланировано открытие детского сада.
В пешей доступности находятся продуктовые магазины, кафе и рестораны, школы и поликлиники. В ближайшем окружении крупные парки ВДНХ, парк ''Останкино'', Ботанический сад, Сокольники.