сдам торговые площади, Николая Озерова, 2 корп. 1470 000 ₽ в месяц
30 мая 2024
Дата публикации объявления
Обн. 19 мая
Дата обновления объявления
12
Количество просмотров (+ просмотры за сегодня)
3858 ₽/м² в месяц
Параметры
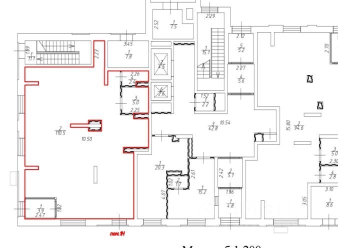
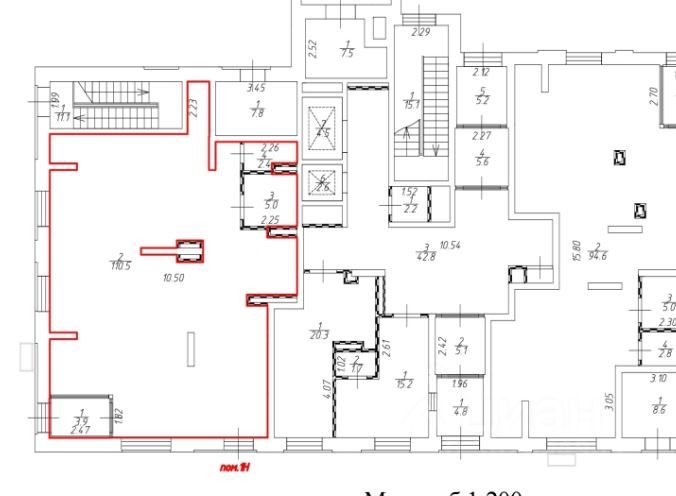
Общая площадь121,8 м2
Этаж1
Отдельный входесть
Аренда торгового помещения в новом ЖК ''Город Тушино-2018''. Квартал 17, ул. Николая Озерова, д. 2, к. 1. Метро Тушинская, Спартак.
Дом сдан, общее кол-во квартир 962. Идет заселение. Дом построен по программе реновации, все квартиры с отделкой. В 2-х этажной пристройке между домами будет расположена клиника Медси.
Жилой кластер Тушино является одним из крупных жилых проектов столицы. Ведено более 7000 тыс. квартир, в прямой видимости от комплекса расположен офисный центр РОСТЕХ на 20 тыс. рабочих мест, в 500 м. стадион ''Открытие Банк Арена''. Более 25 000 тыс. человек проживает в шаговой доступности.
Общая площадь помещения - 121,8 м2, первый этаж, 2 отдельных входных группы (со стороны ул.
Аренда торгового помещения в новом ЖК ''Город Тушино-2018''. Квартал 17, ул. Николая Озерова, д. 2, к. 1. Метро Тушинская, Спартак.
Дом сдан, общее кол-во квартир 962. Идет заселение. Дом построен по программе реновации, все квартиры с отделкой. В 2-х этажной пристройке между домами будет расположена клиника Медси.
Жилой кластер Тушино является одним из крупных жилых проектов столицы. Ведено более 7000 тыс. квартир, в прямой видимости от комплекса расположен офисный центр РОСТЕХ на 20 тыс. рабочих мест, в 500 м. стадион ''Открытие Банк Арена''. Более 25 000 тыс. человек проживает в шаговой доступности.
Общая площадь помещения - 121,8 м2, первый этаж, 2 отдельных входных группы (со стороны ул. Летная), открытая планировка, витринные окна, высота потолка - 4,05 метра, электрическая мощность 24,5 кВт.
Ставка аренды - 470 000 руб. в месяц, УСН. Коммунальные платежи дополнительно. Заключение прямого долгосрочного договора аренды.