Если цена в объявлении изменится, мы сразу сообщим вам об этом на электронную почту.
Нажимая «Подписаться», вы соглашаетесь с правилами.
продам дом, Красновидово8 300 000 ₽
17 мая 2024
Дата публикации объявления
Обн. 17 июля 2024
Дата обновления объявления
59 328 ₽/м²
Чистая продажа
Термин "Чистая продажа" означает, что в квартире никто не прописан или
есть куда выписаться и вывезти вещи. Это лучший вариант для покупателя.
Вероятность срыва сделки минимальна.
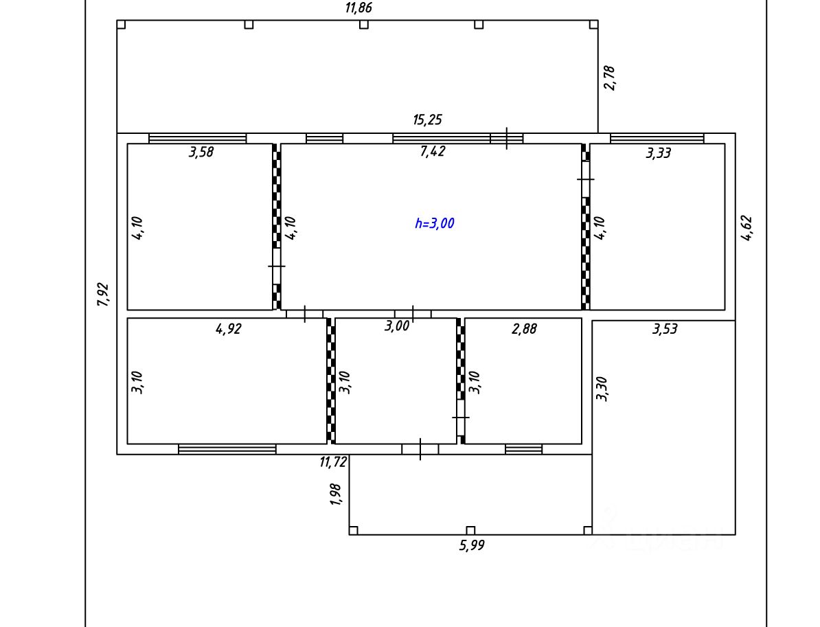
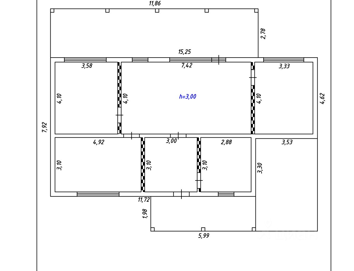
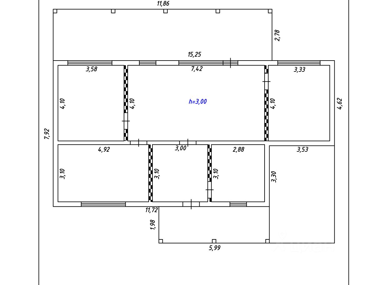
Этажей1
Площадь участка10 соток
Общая площадь139,9 м2
ЭлектричествоЕсть
Газоснабжениецентральное
Продается просторный дом в д. Красновидово Можайского района. Дом построен из газоблоков, утеплен минеральной ватой, установлены двухкамерные панорамные окна, предусмотрена котельная для газового оборудования. В доме три отдельные спальни и кухня-гостиная, просторный коридор и совмещенный санузел. Все комнаты отделаны жидкими обоями, санузел отделан плиткой. Кроме того, во всех помещениях натяжные потолки и теплые полы. В санузле установлена ванна, туалет, раковина и зеркало с полками. Вся сантехника спрятана в отдельный шкаф, установленный в санузле. С фасадной стороны дома имеется просторное крыльцо, а вход с обратной стороны дома обеспечивается широкой и вместительной верандой, что позволяет использовать ее как беседку и сэкономить место на земельном участке.
Продается просторный дом в д. Красновидово Можайского района. Дом построен из газоблоков, утеплен минеральной ватой, установлены двухкамерные панорамные окна, предусмотрена котельная для газового оборудования. В доме три отдельные спальни и кухня-гостиная, просторный коридор и совмещенный санузел. Все комнаты отделаны жидкими обоями, санузел отделан плиткой. Кроме того, во всех помещениях натяжные потолки и теплые полы. В санузле установлена ванна, туалет, раковина и зеркало с полками. Вся сантехника спрятана в отдельный шкаф, установленный в санузле. С фасадной стороны дома имеется просторное крыльцо, а вход с обратной стороны дома обеспечивается широкой и вместительной верандой, что позволяет использовать ее как беседку и сэкономить место на земельном участке. В дом заведено электричество 15 кВт, разведено по дому, имеется распределительный шкаф, предусмотрено большое количество розеток для использования в каждой зоне дома по назначению. Вода в дом заведена от колодца, водоотведение — переливные септики. Участок 10 соток огорожен по всему периметру забором из профлиста с калиткой и въездными воротами. Участок сухой. Дом расположен в очень живописном и уютном месте. Рядом с домом находится продуктовый магазин, аптека, автобусная остановка, а кроме того, до пляжа на Можайском водохранилище 57 минут пешком! Продажа предусматривается как за наличный расчет, так и по любым программам ипотечного кредитования! Звони и договоримся о просмотре!