Продажа торгового помещения c арендатором в Жилом Комплексе ''Перовское 2'', Перовское шоссе, дом 2, корпус 2. Застройщик ''ПИК''. Метро ''Нижегородская'' (5-7 мин пешком).
Проект включает шесть корпусов, детский сад, начальную школу и несколько паркингов. В пешей доступности ТЦ Город, Ашан и Леруа Мерлен. Недалеко находятся такие известные парки, как Перовский, усадьба Кусково и Кузьминки.
ЖК Перовское 2 состоит из 6 корпусов высотой 26-33 этажа, всего 2768 квартир. Все квартиры с отделкой, заселение жильцов происходит сразу. Все корпуса сданы.
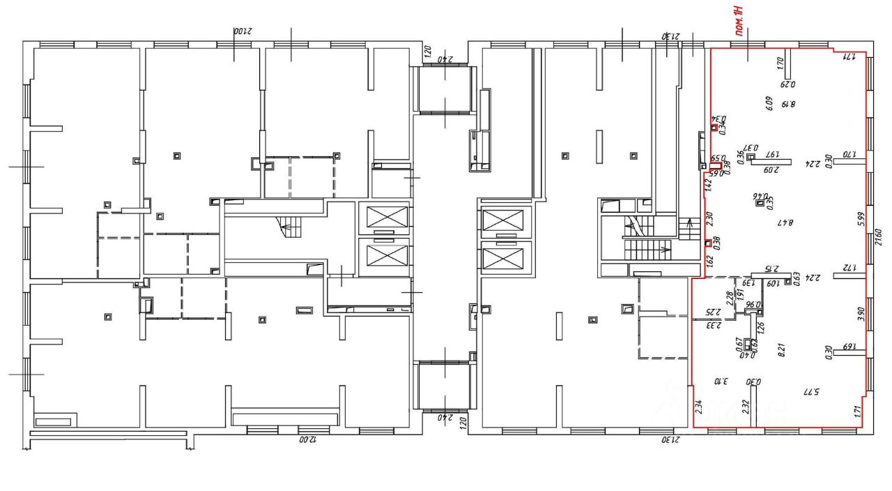
Помещение расположено в корпусе 2.2. Общая площадь 173,4 м2, первый этаж. Отдельная входная группа с боковой части дома. Высота потолка - 4 метра, открытая планировка, электрическая мощность 35 кВт.
Продажа торгового помещения c арендатором в Жилом Комплексе ''Перовское 2'', Перовское шоссе, дом 2, корпус 2. Застройщик ''ПИК''. Метро ''Нижегородская'' (5-7 мин пешком).
Проект включает шесть корпусов, детский сад, начальную школу и несколько паркингов. В пешей доступности ТЦ Город, Ашан и Леруа Мерлен. Недалеко находятся такие известные парки, как Перовский, усадьба Кусково и Кузьминки.
ЖК Перовское 2 состоит из 6 корпусов высотой 26-33 этажа, всего 2768 квартир. Все квартиры с отделкой, заселение жильцов происходит сразу. Все корпуса сданы.
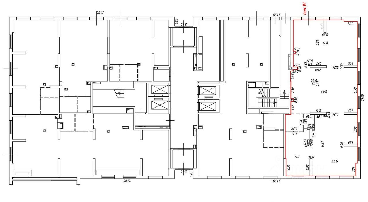
Помещение расположено в корпусе 2.2. Общая площадь 173,4 м2, первый этаж. Отдельная входная группа с боковой части дома. Высота потолка - 4 метра, открытая планировка, электрическая мощность 35 кВт.
Арендатор - магазин хозяйственных товаров. МАП: 1-й год - 420 т.р., 2-й год - 450 т.р., с третьего года индексация 5%.
Стоимость продажи 59 000 000 рублей. Договор купли-продажи.