1-к, Старокоптевский переулок, 4 Показать на карте
Коптево, 6 мин
Москва
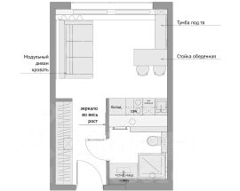
Новая современная светлая квартира в ЖК бизнес-класса Uno. Старокоптевский в 5 мин пешком от м. Коптево.САО. Один из лучших экологических районов Москвы в окружении парков, водоемов и исторических усадеб. Функциональная планировка: зона сна и отдыха с широкой кроватью и ортопедическим матрасом, кухня с максимальным наполнением, зона приема пищи, просторный санузел с душевой, входная группа с большим шкафом.Квартира укомплектована всей необходимый техникой: большой встраиваемый холодильник, духовой шкаф, варочная поверхность, посудомоечная машина, вытяжка, кондиционер, роутер WiFi, телевизор с доступом к мировым кино-новинкам, стиральная машина с функцией пара и возможностью удаленного управление через WiFi. Из окон вид на тихий зеленый двор.Есть гладильная доска, подушки и др приятные мелочи для комфортного проживания. Заходи и живи!ЖК Uno.Старокоптевский расположен в пешей доступности от метро, располагает всей инфраструктурой для активной городской жизни. В доме работает супермаркет Магнит, пункты выдачи Ozon и WB. Для прогулок и отдыха в пешей доступности парк Головинские пруды, Тимирязевский парк, рядом с домом парк Бригантина, с роскошными круглогодичными программами Московские сезоны, катком зимой и бассейнами летом.Закрытая домовая территория без машин с благоустроенными местами отдыха. Для владельцев авто подземный паркинг. Ищем чистоплотных и ответственных арендаторов.БЕЗ ЖИВОТНЫХ И ДЕТЕЙ.Предоплата за 1 месяцЗалог 65 000 ₽
25 м2
5 / 22 этаж
- Показать контакты
- Добавить в избранное
25 м2
5 / 22 этаж
65 000 /мес.
