Дом, Эко Озеро кп (Волоколамский городской округ) Показать на карте
Эко Озеро кп (Волоколамский городской округ)
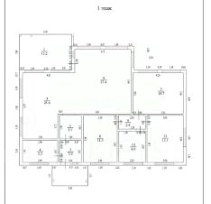
Новый дом 112 м² из толстого сухого бревна в поселке бизнес-класса Эко Озеро. Лес и озеро по границе участка. Полностью готов к проживанию.Продаётся новый дом 112 м², построенный в 2024 году из большого диаметра оцилиндрованного бревна. Дом очень тёплый, энергоэффективный и подходит для круглогодичного проживания. Никто не жил, всё новое.Дом расположен в охраняемом поселке бизнес-класса Эко Озеро с видеонаблюдением, благоустроенными дорогами и быстрым доступом к Новорижскому шоссе.Участок 14 соток — уникальный: с одной стороны лес, с другой — озеро в шаговой доступности. Максимальная приватность. О доме- Площадь: 112 м²- Материал: сухое бревно большого диаметра- Терраса и большой балкон- Современная архитектурная подсветка- Отмостка и дренаж по периметру- Садовый дом 19 м² на участке- Автоматические откатные ворота- Дом покрашен, полностью сухой, без усадки — можно заезжать сразу. Инженерия (всё под ключ)- Электричество 30 кВт (редкость для МО)- Центральное водоснабжение- Септик- Радиаторное отопление + электрический котёл- Бойлер косвенного нагрева- Фильтры очистки воды- Полная разводка электрики- Аккуратная профессиональная котельная- Все коммуникации подключены, инженерия выполнена качественно и надёжно. Планировка1 этаж:прихожая, санузел, котельная, кухня, гостиная, терраса.2 этаж:просторная комната 28 м² с выходом на балкон (можно разделить на 2 спальни). Отделка- Светлые стены в сканди-стиле, ламинат высокого класса, розетки/освещение установлены, современная лестница.- Санузел полностью укомплектован: душевая, раковина, туалет, полотенцесушитель, зеркало с подсветкой. ПреимуществаНовый дом — никто не жилПремиальный материал: толстое сухое бревноТихое место с природой вокругПоселок высокого уровняПолностью готов для проживанияДокументы в порядке, возможна пропискаБыстрый выход на сделку Звоните — отправлю дополнительные фото и покажу дом в любой день.
112 м2
2 этажа
Дерево
- Показать контакты
- Добавить в избранное
112 м2
2 этажа
Дерево
19 900 000
177 679 /м2
