Дом, с. Озерецкое, 110а Показать на карте
с. Озерецкое
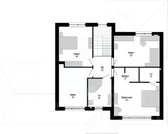
Продаю новый, современный загородный дом, 165 м2 на участке 8.13 сот.Дом построен по проектам архитектурной мастерской Рината Гильмутдинова (RINART.pro) в стиле барнхаус. дом построен из 400-го качественного газоблока (Bonolit) , что гарантирует тепло в жоме круглый год. В отделке дома использован уникальный кирпич 18 века ручной формовки. Контур домов полностью закрыт. Стоят качественные стеклопакеты, двери. К дому подведен септики. Электричество - 15 кВт на каждый дом. Газ по границе участков. Удобное расположение: 20 мин на малине от ст. МЦД Лобня 16 минут до а/п Шереметьево С30 минут до МКАД.Выезд в город возможен через Дмитровское, Рогачевское шоссе, Ленинградское шоссе и платную Ленинградку.До остановки автобуса 6 минут пешком. Дома расположены в окружении озер Нерское, Круглое, Долгое. В районе очень развитая инфраструктура: школа, рестораны, храм, магазины, рынки и места отдыха (клуб охотников и рыболовов, пляжи, место проведения лыжных забегов, конные клубы и т.п.) Несмотря на близость транспортных артерий и разнообразную инфраструктуру, дом находится на удалении от трассы и на холме, что обеспечивает тишину и хороший вид. Дом относятся к селу Озерецкое и лишены всевозможных взносов, эксплуатационных платежей и прочих поборов. Назначение участка - земли населенных пунктов, назначение- ЛПХ (то есть, возможна прописка) .Дом 165 м2. Участок ЛПХ - 8,13 сот. Септик, эл-во 15 кВт, газ по границе.
165 м2
2 этажа
- Показать контакты
- Добавить в избранное
165 м2
2 этажа
22 900 000
138 788 /м2
