logo
N1.RU — новая улучшенная версия Е1.Недвижимость
Чтобы вернуться на старый сайт Е1.Недвижимость, перейдите по ссылке в нижней части сайта N1.RU
  • Продажа
  • Аренда
  • Новостройки
  • Журнал
  • Компании
  • Шаблоны документов
  • Налоговый вычет
  • Еще
  • Личный кабинет
    • Регистрация на Циан
    • Москва
  • Добавить объявление
Тип недвижимости
Москва
Начните вводить или выберите объект в выпадающем списке
  • Метро
  • Район и микрорайон
Количество комнат
Цена
  1. Недвижимость в Москве
  2. Продажа
  3. Квартиры
  4. 21 объявление

Продажа квартир в Москве

За все время
Сортировка по умолчанию
СпискомСписком
ТаблицейТаблицей
На картеНа карте
Открыть поиск по карте

По вашему запросу объявлений не найдено

1/8
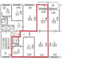
3-к, Днепропетровская, 35 корп. 1 Показать на карте
Пражская, 14 мин
Москва
Арт. 134816454 3-комнатная квартира с ремонтом и большой лоджией. Можно заехать и сразу жить. Общая площадь 58.8кв м.Кухня 6 кв м.Застеклённая лоджия.Косметический ремонт.Планировка - распашонка.Соседи хорошие. Ремонт свежий.Рядом детские сады, школы, поликлиники - все в шаговой доступности. Возможна субсидированная ипотека. Звоните, организуем показ.
58 м2
7 / 9 этаж
Монолит
  • Показать контакты
  • Добавить в избранное
58 м2
7 / 9 этаж
Монолит
19 999 000 
340 119 /м2
    1/21
    2-к, Кировоградская, 32 корп. 1 Показать на карте
    Пражская, 6 мин
    Москва
    Номер лота: вт-0432936.О ДОМЕ: Панельный, год постройки 1972. Косметический ремонт подъезда сделан в 2025 году. Расположен на второй линии от дороги.ЗЕЛЕНАЯ ЗОНА/ СПОРТИВНАЯ ЗОНА: Парк Каскад Кировоградский прудов, Народный парк. За 15 минут можно дойти до Битцевского леса. Детские площадки, Спортивные площадки, Площадки для занятия с собаками.ТРАНСПОРТНАЯ ДОСТУПНОСТЬ:Удобный выезд на МКАД, МСД.До метро Пражская - 7 минут пешком.До платформы D2 - Покровское - 22 минуты на общественном транспорте.ОБРАЗОВАНИЕ/СПОРТ: детские сады, общеобразовательные школы 1582 начальная, 1245, 504, МТКИ имени Л.Б. Красина, РГГУ.Чертановский МКСШОР Юг Москомспотра, спортивный комплекс бассейн ''Волна''. МАГАЗИНЫ: Пятерочка, Магнит, Четыре лапы, аптеки, торгово-развлекательный центр Columbus. Центр госуслуг ''Мои документы'' - 10 минут пешком.О КВАРТИРЕ: Светлая, окна на юго-восток, установлены стеклопакеты. Из окон красивый вид. Требуется ремонт. Хорошие спокойные соседи. Содействие в получении специальных условий и преференций по ипотеке.
    45 м2
    10 / 12 этаж
    Панель
    • Показать контакты
    • Добавить в избранное
    45 м2
    10 / 12 этаж
    Панель
    15 000 000 
    331 858 /м2
      1/26
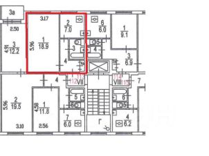
      3-к, Чертановская, 43 корп. 2 Показать на карте
      Пражская, 8 мин
      Москва
      Вашему вниманию предлагаем квартиру с потрясающими видами только что после ремонта. В квартире никто не жил после ремонта! Продается очаровательная квартира со свежим дизайнерским ремонтом. Квартира расположена в престижном, комфортном районе Москвы с развитой инфраструктурой. В окружении парков, в пешей доступности от метро Пражская. Обжитой район, поэтому вся необходимая инфраструктура в доступности: школы, семейные клиники, детские сады. Неподалеку расположен ТРЦ Коламбус со всеми необходимыми магазинами, ресторанами и развлечениями.Функциональная планировка:- Просторная кухня (укомплектована современной техникой: посудомойка, варочная панель, духовой шкаф, холодильник)- Уединённая спальня с двуспальной кроватью- Гостиная с раскладывающимся диваном и ТВ зоной - Отдельная, вместительная гардеробная- Санузел в скандинавском стиле с регулируемым теплым полом- В квартире предусмотрено большое количество мест для хранения (встраиваемые шкафы)Окна выходят на разные стороны дома. В квартире произведен капитальный ремонт. Полная замена всех коммуникаций: электрика, сантехника. В отделке подобраны современные, качественные материалы, износостойкий кварцвинил. Установлены пластиковые окна. В каждой комнате установлен кондиционер. Вся новая мебель и техника остаётся будущему владельцу. Идеальные документы- один взрослый, основание собственности Договор купли-продажи. Свободная продажа. Полная стоимость в договоре. Без прописанных, без обременений.
      59 м2
      5 / 9 этаж
      Панель
      • Показать контакты
      • Добавить в избранное
      59 м2
      5 / 9 этаж
      Панель
      21 800 000 
      369 492 /м2
        1/11
        1-к, Чертановская, 43 корп. 2 Показать на карте
        Пражская, 8 мин
        Москва
        Номер в базе: 12511409. Продаётся однокомнатная квартира в отличной локации с развитой инфраструктурой. Рядом школа, детский сад, бассейн, магазины, торговый центр ''Коламбус'' и парк — всё необходимое для комфортной жизни. Квартира требует ремонта, что даёт возможность создать пространство под свой вкус. Без обременений. Метро ''Пражская'' в 15 минутах ходьбы, также рядом ходят трамваи и автобусы. Транспортная доступность в разные направления. Много бесплатных парковочных мест — проблем с машиной не будет. Подробности по телефону и в СМС.Код пользователя: 203401
        32 м2
        1 / 9 этаж
        • Показать контакты
        • Добавить в избранное
        32 м2
        1 / 9 этаж
        11 300 000 
        353 125 /м2
          1/14
          2-к, Чертановская, 45 корп. 2 Показать на карте
          Пражская, 10 мин
          Москва
          Продаётся уютная двухкомнатная квартира в отличном состоянии. Дом серии П3М - удачная планировка с просторной кухней 9 кв.м.Дом, построенный в 2000 году, находится в хорошем состоянии и оборудован двумя лифтами: пассажирским и грузовым, и мусоропроводом, чистый подъезд. Район прекрасно развит: рядом находятся школы, детские сады, магазины и клиники. Это делает его идеальным для семей с детьми и тех, кто ценит удобство городской жизни. Хорошая транспортная доступность позволяет быстро добраться до центра города и других районов. В непосредственной близости ухоженный парк ''Каскад Кировоградских прудов''. Через дорогу Народный парк.Квартира продаётся без обременений, что ускоряет процесс сделки. Возможна покупка в ипотеку. Свободная продажа.Приглашаем вас на просмотр, чтобы лично оценить все преимущества этой квартиры. Звоните и записывайтесь на просмотр!
          53 м2
          11 / 17 этаж
          Панель
          • Показать контакты
          • Добавить в избранное
          53 м2
          11 / 17 этаж
          Панель
          17 500 000 
          329 567 /м2
            1/9
            1-к, Чертановская, 43 корп. 2 Показать на карте
            Пражская, 8 мин
            Москва
            Арт. 134995380 Продается однокомнатная квартира в районе с очень развитой инфраструктурой. Квартира расположена в высотном 9-этажном доме в серединке дома, благодаря чему она всегда будет сохранять микроклимат, в окружении соседних квартир.Ремонт как показано на фото. Чем переплачивать за ремонт, в котором уже жили, вы имеете возможность воплотить все свои мечты в дизайне с нуля и получить абсолютно новый ремонт.Расчет по ремонтно- отделочным работам и отделочников можем посоветовать. Сотрудничаем со строительной компанией с хорошей репутацией.В квартире очень удобное расположение комнат.Прихожая с нишей, в которую очень хорошо вмещается шкаф-купе,чтобЫ спрятать все ненужное.Кухня квадратной формы, что дает варианты расположить мебель. И, конечно, просторная жилая комната-можно расположить мебель для проживания одного человека, либо сделать зонирование.Рядом есть все,что необходимо для комфортного проживания: гипермаркет, обновленный бассейн Волна, поликлиники, остановки. Прямо за домом замечательный парк - Кировоградские пруды, вы всегда сможете погулять и подышать свежим воздухом с семьей.Документы полностью готовы к продаже, прописанных никого нет.Звоните и записывайтесь на просмотр, пока хороший вариант не ушел к другим!
            32 м2
            2 / 9 этаж
            Панель
            • Показать контакты
            • Добавить в избранное
            32 м2
            2 / 9 этаж
            Панель
            11 300 000 
            353 125 /м2
              1/26
              3-к, Подольских Курсантов, 6 корп. 3 Показать на карте
              Пражская, 10 мин
              Москва
              Дом после капитального ремонта, расположен во дворе.Много зелени, тихо.Удобная планировка: окна на 2 стороны (распашонка), кухня 8,3кв.м, большая утепленная лоджия.Хорошее жилое состояние квартиры, окна ПВХ, кондиционеры, готовы оставить всю мебель и бытовую технику.Чистый подъезд. Нет проблем с парковкой.ДКП 2014 года, один собственник, никто не проживает и не прописан.Прямая продажа, обременений нет, ипотека возможна.Развитая инфраструктура: дет.сады, школы, поликлиники, сетевые магазины, ТЦ Columbus.Зоны отдыха, пруды. Недалеко Битцевский лес.До ст.метро Пражская 10 минут пешком, до МЦД-2 15 минут пешком.
              60 м2
              5 / 9 этаж
              Панель
              • Показать контакты
              • Добавить в избранное
              60 м2
              5 / 9 этаж
              Панель
              19 000 000 
              314 050 /м2
                1/13
                1-к, Чертановская, 43 корп. 2 Показать на карте
                Пражская, 8 мин
                Москва
                Код объекта: 2107500.Срочно продаём уютную однокомнатную квартиру в Москве, на Чертановской улице, 43к2. Это идеальный выбор для тех, кто ищет комфортное жильё по доступной цене. Квартира расположена на втором этаже девятиэтажного панельного дома 1970 года постройки. Общая площадь — 32,7 кв. м, из них жилая — 19 кв. м, площадь кухни — 6,7 кв. м. Высота потолков — 2,5 м. Окна выходят на улицу. В квартире старый ремонт, есть один совмещённый санузел. Центральное отопление обеспечит вам комфорт в холодное время года. Этот вариант отлично подойдёт молодым специалистам или студентам, которые ценят удобство и функциональность. Не упустите шанс стать владельцем этой замечательной квартиры! Позвоните нам прямо сейчас, чтобы узнать больше и записаться на просмотр. Мы гарантируем безопасную сделку и юридическую поддержку нашим клиентам. Поможем одобрить ипотеку с сниженной ставкой.
                32 м2
                2 / 9 этаж
                Панель
                • Показать контакты
                • Добавить в избранное
                32 м2
                2 / 9 этаж
                Панель
                10 500 000 
                321 101 /м2
                  1/14
                  3-к, Чертановская, 43 корп. 2 Показать на карте
                  Пражская, 8 мин
                  Москва
                  Продается квартира, по адресу г. Москва, Чертановская улица, дом 43, корпус 2, квартира 33, район Чертаново Центральное, удобное расположение относительно метро Пражская. Общая площадь составляет 49 м², в том числе кухня 6,1 м² и жилая площадь 34 м². Количество комнат 3, расположена на 9 этаже из 9.Год постройки здания 1970. Состояние квартиры: требуется ремонт. Количество санузлов 1, тип санузла раздельный.Предусмотрены следующие удобства: наличие лифта.
                  49 м2
                  9 / 9 этаж
                  • Показать контакты
                  • Добавить в избранное
                  49 м2
                  9 / 9 этаж
                  10 727 000 
                  218 918 /м2
                    1/10
                    1-к, Чертановская, 43 корп. 2 Показать на карте
                    Пражская, 8 мин
                    Москва
                    Продается квартира, по адресу г. Москва, Чертановская улица, дом 43, корпус 2, квартира 161, район Чертаново Центральное, удобное расположение относительно метро Пражская. Общая площадь составляет 32,5 м², в том числе кухня 6,8 м² и жилая площадь 18,7 м². Количество комнат 1, расположена на 5 этаже из 9.Год постройки здания 1970. Состояние квартиры: требуется ремонт. Количество санузлов 1, тип санузла совмещенный.Предусмотрены следующие удобства: наличие лифта.
                    32 м2
                    5 / 9 этаж
                    • Показать контакты
                    • Добавить в избранное
                    32 м2
                    5 / 9 этаж
                    8 172 000 
                    251 446 /м2
                      1/13
                      2-к, Чертановская, 43 корп. 2 Показать на карте
                      Пражская, 8 мин
                      Москва
                      Продается квартира, по адресу г. Москва, Чертановская улица, дом 43, корпус 2, квартира 146, район Чертаново Центральное, удобное расположение относительно метро Пражская. Общая площадь составляет 43,9 м², в том числе кухня 6 м² и жилая площадь 27,7 м². Количество комнат 2, расположена на 1 этаже из 9.Год постройки здания 1970. Состояние квартиры: требуется ремонт. Количество санузлов 1, тип санузла раздельный.Предусмотрены следующие удобства: наличие лифта.
                      43 м2
                      1 / 9 этаж
                      • Показать контакты
                      • Добавить в избранное
                      43 м2
                      1 / 9 этаж
                      10 071 000 
                      229 408 /м2
                        1/24
                        3-к, Чертановская, 39 корп. 2 Показать на карте
                        Пражская, 6 мин
                        Москва
                        Номер лота: вт-0432698.Квартира с тремя изолированными комнатами, застеклённым балконом. Расположена на 7 этаже, поэтому в квартире достаточно светло. Требует ремонта. Дом расположен в тихом месте, в удалении от проезжей части, зеленый двор, чистый подъезд. Окна выходят на две стороны. Чистая придомовая территория и подъезд. В шаговой доступности остановка общественного транспорта и станция метро Пражская. Рядом вся развитая инфраструктура района. Квартира находилась в одной семье с момента постройки (справка о выплаченном пае с момента постройки дома), 1 взрослый собственник, лёгкая альтернатива, выписка до сделки. Содействие в получении специальных условий и преференций по ипотеке.
                        58 м2
                        7 / 9 этаж
                        Панель
                        • Показать контакты
                        • Добавить в избранное
                        58 м2
                        7 / 9 этаж
                        Панель
                        17 500 000 
                        301 724 /м2
                          1/16
                          2-к, Чертановская, 50 корп. 2 Показать на карте
                          Пражская, 14 мин
                          Москва
                          Прошу риелторов не беспокоить , свой риелтор есть, поэтому комиссию за продажу платить не буду. Продается 2-комнатная квартира от собственника, 37,3 м², Южное Чертаново.Квартира полностью готова к проживанию: заезжай и живи. Сделан капитальный ремонт 2017 года (с заменой всей электрики, труб, радиаторов) и свежий косметический ремонт 2025 года. Отделка качественная, для себя — на полу паркет, керамогранит, тёплые полы на кухне, в ванной и лоджии. Расположение и транспорт: Район Южное Чертаново, зелёный, с развитой инфраструктурой. Рядом магазины спар, пятерочка (в доме), дикси, вкуссвил, сбербанк, рынок и ТЦ Каламбус в 15 минутах пешком. Пешком до метро Пражская— 15 минут. Также можно доехать на трамвае до Чертановской. Автобусная остановка в 3 минутах ходьбы от дома. Рядом лесопарк, пруды, зоны отдыхаХарактеристики квартиры: Общая площадь 37,3 м², кухня 6 м² Комнаты изолированные Этаж 4 из 9, два пассажирских лифта Высота потолков 2,5 мСанузел смежный с местом для стиральной машиныУтеплённая и застеклённая лоджия с тёплым полом (можно использовать круглый год)На всех окнах — трёхкамерные стеклопакеты, в квартире всегда теплоПлита газоваяО доме и коммуникациях:Был капитальный ремонт систем водоснабжения, канализации, теплоснабжения — стояки новыеОбщий тамбур на 4 квартирыКвартира тёплая, светлая, с хорошим ремонтом. Звоните и приходите смотреть квартиру
                          37 м2
                          4 / 14 этаж
                          Бетонные блоки
                          • Показать контакты
                          • Добавить в избранное
                          37 м2
                          4 / 14 этаж
                          Бетонные блоки
                          15 700 000 
                          420 912 /м2
                            1/18
                            3-к, Красного Маяка, 11 корп. 3 Показать на карте
                            Пражская, 14 мин
                            Москва
                            АВАНС ДО 08.05.26Продается уютная 3-комнатная квартира в районе метро ''Пражская''. Общая площадь составляет 62 кв. м, расположена на 8 этаже 9-этажного дома, построенного в 1971 году. Высота потолков — 2,64 метра. В пешей доступности от станции метро — всего 16 минут.Квартира с дизайнерским ремонтом, в квартире после ремонта никто не жил. Произведена замена всех труб в сантех шкафу (канализация, труба горячей воды и холодной воды) установлены счетчики, разводка в гребенке - трубы марки REHAU. Установлен проточный водонагреватель, что позволяет пользоваться горячей водой во время летнего отключения. Обстановка создает современную и стильную атмосферу. Вся мебель и техника остаётся новым жильцам. Просторные комнаты и функциональная планировка позволяют использовать пространство максимально эффективно. все комнаты изолированные, есть гардеробная, кухня площадью 6,5 кв. м оборудована всем необходимым (холодильник Индезит, посудомоечная машина, фильтры для питьевой воды Аквафор, вытяжка и духовка. В квартире есть один отдельный санузел, со стиральной машинкой с сушкой. Для вашего комфорта предусмотрены подогрев пола на балконе и ванной комнате, Со всех окон можно наслаждаться шикарными видами, район утопает в зелени. Дом в хорошем состоянии, после ремонта, с наземной парковкой и пассажирским лифтом. Мусоропровод позволяет поддерживать чистоту и порядок. В районе развита инфраструктура: рядом находятся школы, детские сады и магазины, ТЦ Коламбус, в соседнем доме Пятёрочка и пункт Вайлдберриз, это делает это место удобным для семейной жизни. также рядом с домом прекрасная площадка для отдыха с альпийскими горками, качелями, и столиками для игры в шахматы, а также прекрасный променад. Условия сделки: продажа квартиры без обременений и задолженностей. Полная сумма в ДКП. Возможна ипотека. Все документы готовы к сделке, что позволяет быстро и без проблем оформить покупку.Приглашаем вас на просмотр! Звоните и записывайтесь на удобное время, чтобы оценить все преимущества этой замечательной квартиры. Риэлторам рады с реальными покупателями.
                            62 м2
                            8 / 9 этаж
                            • Показать контакты
                            • Добавить в избранное
                            62 м2
                            8 / 9 этаж
                            22 300 000 
                            359 677 /м2
                              1/21
                              2-к, Кировоградская, 32 корп. 2 Показать на карте
                              Пражская, 6 мин
                              Москва
                              Код объекта: 2033436.Квартира на авансе.Светлая и тёплая 2-комнатная квартира общей площадью 48,1 м² с удобной планировкой. Раздельный санузел, хорошие виды из окон, квартира наполнена светом и воздухом. Отлично подойдёт как для комфортного проживания, так и для сдачи в аренду.Локация — одно из главных преимуществ.Дом находится в спокойном и очень зелёном районе: в пешей доступности пруд, прогулочные зоны и много зелени — идеальное место для отдыха и прогулок.Метро ''Пражская'' — всего 8 минут пешком, без пересадок и лишнего транспорта.Идеально для семей с детьми:• территория школы граничит с домом — детям удобно и безопасно ходить в школу• рядом несколько детских садов• много детских и спортивных площадок во дворе и рядом с домомРайон с развитой инфраструктурой: магазины, супермаркеты, торговые центры, поликлиники — всё в шаговой доступности.Дополнительный плюс — большое количество бесплатных парковочных мест рядом с домом, проблем с парковкой нет.Чистый подъезд, ухоженная придомовая территория, спокойные соседи.Звоните и записывайтесь на просмотр — отличный вариант для жизни в зелёном районе рядом с метро.
                              48 м2
                              1 / 12 этаж
                              Панель
                              • Показать контакты
                              • Добавить в избранное
                              48 м2
                              1 / 12 этаж
                              Панель
                              14 000 000 
                              291 060 /м2
                                1/23
                                3-к, Днепропетровская, 35 корп. 1 Показать на карте
                                Пражская, 14 мин
                                Москва
                                Риелтор есть.Прошу агентов связываться при наличии реального покупателя. Продается квартира в отличном состоянии. Капитальный ремонт с заменой всех ключевых коммуникаций( в т.ч. электрики, сантехники, окон, входных дверей) производился около 6 лет назад, в 2025 году сделаны новые обои, ламинат, межкомнатные двери, утеплен, остеклен и отделан балкон. Все комнаты изолированные, есть гардеробная, просторный балкон, сан.узел совмещен, не угловая. В квартире тепло и уютно, дом во дворе, не шумно, парковка всегда найдется, соседи доброжелательные, в подъезде чисто. Высокий первый этаж. Во дворе 2 детские площадки, несколько школ, сады, поликлиники, рядом аптеки, магазины, остановка автобусов и трамвая, до м. Пражская 15 мин. пешком. Через пару домов пруд и прогулочная зона с культурной зоной отдыха. Залогов и обременений нет, задолженностей по коммунальным услугам нет,свободная продажа, 1 взрослый собственник. По ипотеке Сбербанка скидка . торг.
                                58 м2
                                1 / 9 этаж
                                • Показать контакты
                                • Добавить в избранное
                                58 м2
                                1 / 9 этаж
                                16 850 000 
                                286 565 /м2
                                  1/38
                                  2-к, Чертановская, 49 корп. 1 Показать на карте
                                  Улица Академика Янгеля, 12 мин
                                  Москва
                                  Номер лота: вт-0432399.Продаётся уютная 2 к.кв. в пешей доступности от двух станций метро. Отличный район с развитой инфраструктурой: школы, детские сады, магазины, поликлиника, ТРЦ Колумбус, каскадный пруд, Битцевский лес - есть всё необходимое для комфортной жизни. Остановка общественного транспорта рядом с домом. Удобный выезд на Варшавское шоссе. 1 взрослый собственник. Свободная продажа. Содействие в получении специальных условий и преференций по ипотеке.
                                  44 м2
                                  4 / 14 этаж
                                  Панель
                                  • Показать контакты
                                  • Добавить в избранное
                                  44 м2
                                  4 / 14 этаж
                                  Панель
                                  14 200 000 
                                  321 267 /м2
                                    1/21
                                    2-к, Днепропетровская, 37 корп. 1 Показать на карте
                                    Пражская, 13 мин
                                    Москва
                                    Двухкомнатная квартира на 2-м этаже 9-ти этажного панельного дома П-49/ЮД (ЖСК изначально) 1975г.п., один пассажирский лифт в подъезде.Линейка: ОП 43,7 кв.м., ЖП 27,5 кв.м. (раздельные комнаты 8.9 и 18.6), кухня 5.9 кв.м., раздельный СУ, без балкона. Потолки 2,65 метра.Жилое состояниеКвартира не торцевая, тихая, тёплая. 4 квартиры на лестничной площадке.Старый спальный район с развитой инфраструктурой. До м.Пражская 1 км. Рдом школа, детская поликлиника, церковь. Один взрослый собственник, правоустановка наследство по закону, 2021г. Альтернатива на большую квартиру с доплатой кредитными деньгами. Возможна продажа по ипотеке.
                                    44 м2
                                    2 / 9 этаж
                                    Панель
                                    • Показать контакты
                                    • Добавить в избранное
                                    44 м2
                                    2 / 9 этаж
                                    Панель
                                    14 000 000 
                                    313 901 /м2
                                      1/21
                                      3-к, Чертановская, 43 корп. 2 Показать на карте
                                      Пражская, 8 мин
                                      Москва
                                      Продается уютная трехкомнатная квартира, расположенная на Чертановской улице. Квартира находится на 9-м этаже 9-этажного панельного дома. Общая площадь составляет 58.6 кв. м, из них жилая площадь — 39 кв. м, а кухня — 6 кв. м. Все окна выходят во двор, что обеспечивает тишину и спокойствие.В квартире новый свежий ремонт ''с иголочки'', выполнен из современных и качественных материалов. Ремонт был закончен совсем недавно, в 2026 году. Светлые просторные комнаты, современная кухня и уютный балкон создают комфортную атмосферу для жизни. Санузел раздельный, что очень удобно для семьи.Дом в хорошем состоянии. Капитальный ремонт производился несколько лет назад. В наличии современный пассажирский лифт и мусоропровод. В данный момент дом обретает новую жизнь. Ранее этот дом принадлежал одному известному московскому заводу, а в его квартирах сотрудники завода проживали на правах общежития. После закрытия завода квартиры были проданы с аукциона. Это значит, что все вновь заезжающие жители дома приобретали квартиры за свои средства, что, в свою очередь, гарантирует порядочность контингента жителей и будущего соседства.В шаговой доступности от дома находятся гипермаркет Спар и и множество других магазинов, а также школы, детские сады, клиники, поэтому все необходимые объекты инфраструктуры у вас под рукой. В соседстве с домом находится большой и современный спортивный комплекс Волна с бассейном, тренажерными залами и фитнесом.Расположение дома очень удачное с точки зрения экологии и озеленения. В трех минутах от дома находится просторный ухоженный парк ''Каскад Кировоградских прудов'', в котором приятно проводить свободное время. Пройдя всего 5 минут пешком, вы попадаете в потрясающе красивый ''Народный парк'', на другой стороне которого, всего в 10-15 минутах от дома, находится выход в огромный лесопарк ''Битца''.До станции метро ''Пражская'' можно дойти пешком всего за 7-10 минут, что очень удобно для ежедневных поездок по городу.Я собственник и квартиры и объявления, поэтому вы можете рассчитывать на чистую и прозрачную сделку. Все документы готовы, и нет никаких обременений.Продаю сам. Просьба посредников и риэлторов не беспокоить - разговор с вами будет жесткий и неприятный.При покупке квартиры обсуждаемы и реализуемы следующие договорные опции: - установка стирильной машины (ваш выбор) и раковины (в наличии) в ванной комнате. - установка холодильника (ваш выбор) - установка люстр в комнатах (ваш выбор)
                                      58 м2
                                      9 / 9 этаж
                                      Панель
                                      • Показать контакты
                                      • Добавить в избранное
                                      58 м2
                                      9 / 9 этаж
                                      Панель
                                      17 700 000 
                                      302 048 /м2
                                        1/9
                                        1-к, Дорожный 3-й проезд, 4 корп. 2 Показать на карте
                                        Улица Академика Янгеля, 10 мин
                                        Москва
                                        Однокомнатная квартира с большой застекленной лоджией и раздельным санузлом. Полностью меблирована (шкафы, кровать, стол) и оснащена всей необходимой бытовой техникой, все остается будущему покупателю. Квартира очень светлая, с окнами на две стороны, стеклопакеты и радиаторы меняли несколько лет назад.Удачное расположение дома: зеленый двор и в удалении от шумной улицы, в пешей доступности до двух станций метро, в районе со сложившийся инфраструктурой. В доме уже был капитальный ремонт. Недалеко парки Покровский и Каскад Кировоградских прудов - прекрасно подходят для прогулок с детьми, занятий спортом, отдыха и просто комфортной жизни! Квартира полностью свободна, без перепланировок, один собственник, подходит под ипотеку. Сопровождение сделки для покупателя. Ждем ваших звонков!
                                        33 м2
                                        6 / 12 этаж
                                        Панель
                                        • Показать контакты
                                        • Добавить в избранное
                                        33 м2
                                        6 / 12 этаж
                                        Панель
                                        12 200 000 
                                        369 697 /м2
                                          1/11
                                          3-к, Чертановская, 43 корп. 4 Показать на карте
                                          Пражская, 8 мин
                                          Москва
                                          Невозможно остаться равнодушным побывав в этой квартире. Великолепно спланированная (большая кухня-гостиная, просторные спальни),прихожая позволяет вместить все необходимое и масса приятных мелочей, подчеркивающих продуманность каждой детали. Две большие лоджии, три санузла, гардеробная, не оставят равнодушным самого требовательного покупателя. Если Вы хотите проживать в уютной квартире, с качественным ремонтом, в районе с прекрасной инфраструктурой, где существуют все атрибуты комфортного проживания, Вам необходимо записаться на просмотр этой квартиры. Дополнительная информация по телефону. Свободная продажа. Все оперативно.
                                          118 м2
                                          18 / 24 этаж
                                          Монолит
                                          • Показать контакты
                                          • Добавить в избранное
                                          118 м2
                                          18 / 24 этаж
                                          Монолит
                                          34 000 000 
                                          286 195 /м2
                                            Распечатать
                                            Продажа квартир в Москве
                                            • по районам
                                            • Замоскворечье
                                            • Тверской
                                            • Хамовники
                                            • Войковский
                                            • Головинский
                                            • Молжаниновский
                                            • Алексеевский
                                            • Марфино
                                            • Свиблово
                                            • Вешняки
                                            • Измайлово
                                            • Перово
                                            • Капотня
                                            • Лефортово
                                            • Печатники
                                            • Братеево
                                            • Нагорный
                                            • Чертаново Центральное
                                            • Котловка
                                            • Ясенево
                                            • Можайский
                                            • Ново-Переделкино
                                            • Тропарёво-Никулино
                                            • Фили-Давыдково
                                            • Строгино
                                            • Старое Крюково
                                            • Красносельский
                                            • Якиманка
                                            • Дмитровский
                                            • Савёловский
                                            • Алтуфьевский
                                            • Марьина Роща
                                            • Северный
                                            • Северное Медведково
                                            • Восточный
                                            • Косино-Ухтомский
                                            • Преображенское
                                            • Северное Измайлово
                                            • Кузьминки
                                            • Люблино
                                            • Рязанский
                                            • Даниловский
                                            • Орехово-Борисово Северное
                                            • Чертаново Южное
                                            • Ломоносовский
                                            • Северное Бутово
                                            • Внуково
                                            • Очаково-Матвеевское
                                            • Куркино
                                            • Хорошёво-Мнёвники
                                            • Силино
                                            • Мещанский
                                            • Аэропорт
                                            • Западное Дегунино
                                            • Сокол
                                            • Бабушкинский
                                            • Бутырский
                                            • Останкинский
                                            • Южное Медведково
                                            • Восточное Измайлово
                                            • Метрогородок
                                            • Соколиная Гора
                                            • Марьино
                                            • Текстильщики
                                            • Донской
                                            • Орехово-Борисово Южное
                                            • Академический
                                            • Гагаринский
                                            • Обручевский
                                            • Тёплый Стан
                                            • Дорогомилово
                                            • Проспект Вернадского
                                            • Митино
                                            • Щукино
                                            • Крюково
                                            • Арбат
                                            • Пресненский
                                            • Беговой
                                            • Коптево
                                            • Тимирязевский
                                            • Ховрино
                                            • Бибирево
                                            • Лианозово
                                            • Отрадное
                                            • Ярославский
                                            • Гольяново
                                            • Новогиреево
                                            • Сокольники
                                            • Некрасовка
                                            • Южнопортовый
                                            • Зябликово
                                            • Нагатино-Садовники
                                            • Царицыно
                                            • Зюзино
                                            • Черёмушки
                                            • Крылатское
                                            • Раменки
                                            • Покровское-Стрешнево
                                            • Южное Тушино
                                            • Матушкино
                                            • Басманный
                                            • Таганский
                                            • Бескудниковский
                                            • Восточное Дегунино
                                            • Левобережный
                                            • Хорошёвский
                                            • Лосиноостровский
                                            • Ростокино
                                            • Богородское
                                            • Ивановское
                                            • Новокосино
                                            • Выхино-Жулебино
                                            • Нижегородский
                                            • Бирюлёво Восточное
                                            • Бирюлёво Западное
                                            • Москворечье-Сабурово
                                            • Нагатинский Затон
                                            • Чертаново Северное
                                            • Коньково
                                            • Южное Бутово
                                            • Кунцево
                                            • Солнцево
                                            • Филёвский Парк
                                            • Северное Тушино
                                            • Савёлки
                                            • 10-й
                                            • 11-й
                                            • 12-й
                                            • 14-й
                                            • 15-й
                                            • 16-й
                                            • 17-й
                                            • 18-й
                                            • 19-й
                                            • 2-й
                                            • 20-й
                                            • 21-й
                                            • 22-й
                                            • 23-й
                                            • 3-й
                                            • 4-й
                                            • 5-й
                                            • 6-й
                                            • 7-й
                                            • 8-й
                                            • 9-й
                                            • Внуковское
                                            • Вороновское
                                            • Воскресенское
                                            • Восточный округ
                                            • Город Зеленоград округ
                                            • Град Московский
                                            • Десёновское
                                            • Западный округ
                                            • Киевский
                                            • Клёновское
                                            • Кокошкино
                                            • Краснопахорское
                                            • Марушкинское
                                            • Михайлово-Ярцевское
                                            • Московский
                                            • Московский
                                            • Мосрентген
                                            • Новая Москва
                                            • Новомосковский округ
                                            • Новофёдоровское
                                            • Панфиловский
                                            • Первомайское
                                            • Первый Московский Город-Парк
                                            • Роговское
                                            • Рязановское
                                            • Северный округ
                                            • Северо-Восточный округ
                                            • Северо-Западный округ
                                            • Сосенское
                                            • Троицкий округ
                                            • Филимонковское
                                            • Центральный округ
                                            • Щаповское
                                            • Щербинка
                                            • Юго-Восточный округ
                                            • Юго-Западный округ
                                            • Южный округ
                                            • по метро
                                            • Авиамоторная
                                            • Автозаводская
                                            • Академическая
                                            • Александровский сад
                                            • Алексеевская
                                            • Алтуфьево
                                            • Аннино
                                            • Арбатская
                                            • Аэропорт
                                            • Бабушкинская
                                            • Багратионовская
                                            • Баррикадная
                                            • Бауманская
                                            • Беговая
                                            • Белорусская
                                            • Беляево
                                            • Бибирево
                                            • Библиотека им. Ленина
                                            • Новоясеневская
                                            • Боровицкая
                                            • Ботанический сад
                                            • Братиславская
                                            • Бульвар Адмирала Ушакова
                                            • Бульвар Дмитрия Донского
                                            • Бунинская аллея
                                            • Варшавская
                                            • ВДНХ
                                            • Владыкино
                                            • Водный стадион
                                            • Войковская
                                            • Волгоградский проспект
                                            • Волжская
                                            • Воробьевы горы
                                            • Выхино
                                            • Выставочная
                                            • Динамо
                                            • Дмитровская
                                            • Добрынинская
                                            • Домодедовская
                                            • Дубровка
                                            • Измайловская
                                            • Калужская
                                            • Кантемировская
                                            • Каховская
                                            • Каширская
                                            • Киевская
                                            • Китай-город
                                            • Кожуховская
                                            • Коломенская
                                            • Комсомольская
                                            • Коньково
                                            • Красногвардейская
                                            • Красносельская
                                            • Красные ворота
                                            • Крестьянская застава
                                            • Кропоткинская
                                            • Крылатское
                                            • Кузнецкий мост
                                            • Кузьминки
                                            • Кунцевская
                                            • Курская
                                            • Кутузовская
                                            • Ленинский проспект
                                            • Лубянка
                                            • Люблино
                                            • Марксистская
                                            • Марьино
                                            • Маяковская
                                            • Медведково
                                            • Международная
                                            • Менделеевская
                                            • Молодежная
                                            • Нагатинская
                                            • Нагорная
                                            • Нахимовский проспект
                                            • Новогиреево
                                            • Новокузнецкая
                                            • Новослободская
                                            • Новые Черемушки
                                            • Октябрьская
                                            • Октябрьское поле
                                            • Орехово
                                            • Отрадное
                                            • Охотный ряд
                                            • Павелецкая
                                            • Парк Культуры
                                            • Парк Победы
                                            • Партизанская
                                            • Первомайская
                                            • Перово
                                            • Петровско-Разумовская
                                            • Печатники
                                            • Пионерская
                                            • Планерная
                                            • Площадь Ильича
                                            • Площадь Революции
                                            • Полежаевская
                                            • Полянка
                                            • Пражская
                                            • Преображенская площадь
                                            • Пролетарская
                                            • Проспект Вернадского
                                            • Проспект Мира
                                            • Профсоюзная
                                            • Пушкинская
                                            • Речной вокзал
                                            • Рижская
                                            • Римская
                                            • Рязанский проспект
                                            • Савеловская
                                            • Свиблово
                                            • Севастопольская
                                            • Семеновская
                                            • Серпуховская
                                            • Смоленская
                                            • Сокол
                                            • Сокольники
                                            • Спортивная
                                            • Сретенский бульвар
                                            • Студенческая
                                            • Сухаревская
                                            • Сходненская
                                            • Таганская
                                            • Тверская
                                            • Театральная
                                            • Текстильщики
                                            • Теплый Стан
                                            • Тимирязевская
                                            • Третьяковская
                                            • Трубная
                                            • Тульская
                                            • Тургеневская
                                            • Тушинская
                                            • Улица 1905 года
                                            • Улица Академика Янгеля
                                            • Улица Горчакова
                                            • Бульвар Рокоссовского
                                            • Улица Скобелевская
                                            • Улица Старокачаловская
                                            • Университет
                                            • Филевский парк
                                            • Фили
                                            • Фрунзенская
                                            • Царицыно
                                            • Цветной бульвар
                                            • Черкизовская
                                            • Чертановская
                                            • Чеховская
                                            • Чистые пруды
                                            • Чкаловская
                                            • Шаболовская
                                            • Шоссе Энтузиастов
                                            • Щелковская
                                            • Щукинская
                                            • Электрозаводская
                                            • Юго-Западная
                                            • Южная
                                            • Ясенево
                                            • Краснопресненская
                                            • Строгино
                                            • Славянский бульвар
                                            • Мякинино
                                            • Волоколамская
                                            • Митино
                                            • Марьина роща
                                            • Достоевская
                                            • Шипиловская
                                            • Зябликово
                                            • Борисово
                                            • Новокосино
                                            • Пятницкое шоссе
                                            • Алма-Атинская
                                            • Жулебино
                                            • Лермонтовский проспект
                                            • Деловой центр
                                            • Лесопарковая
                                            • Битцевский парк
                                            • Спартак
                                            • Улица Сергея Эйзенштейна
                                            • Выставочный центр
                                            • Улица Академика Королева
                                            • Телецентр
                                            • Улица Милашенкова
                                            • Тропарево
                                            • Котельники
                                            • Технопарк
                                            • Румянцево
                                            • Саларьево
                                            • Фонвизинская
                                            • Бутырская
                                            • Хорошёво
                                            • Зорге
                                            • Панфиловская
                                            • Стрешнево
                                            • Балтийская
                                            • Коптево
                                            • Лихоборы
                                            • Окружная
                                            • Ростокино
                                            • Белокаменная

                                            Вместе с этим также ищут:

                                            Продажа квартир в Москве Продажа однокомнатных квартир в Москве Продажа комнат в Москве Продажа гаражей в Москве Продажа вторички - квартиры в Москве Квартиры в новостройках в Москве

                                            🏠 Как купить квартиру в Москве на N1?

                                            • ✔ В поисках объявления о продаже или покупке квартир в Москве?
                                            • ✔ На N1 размещена 21 квартира
                                            • ✔ Чтобы купить или продать недвижимость, воспользуйтесь формой поиска, фильтрами или быстрыми ссылками.