2-к, Покровская 1-я, 2 Показать на карте
Уваровка
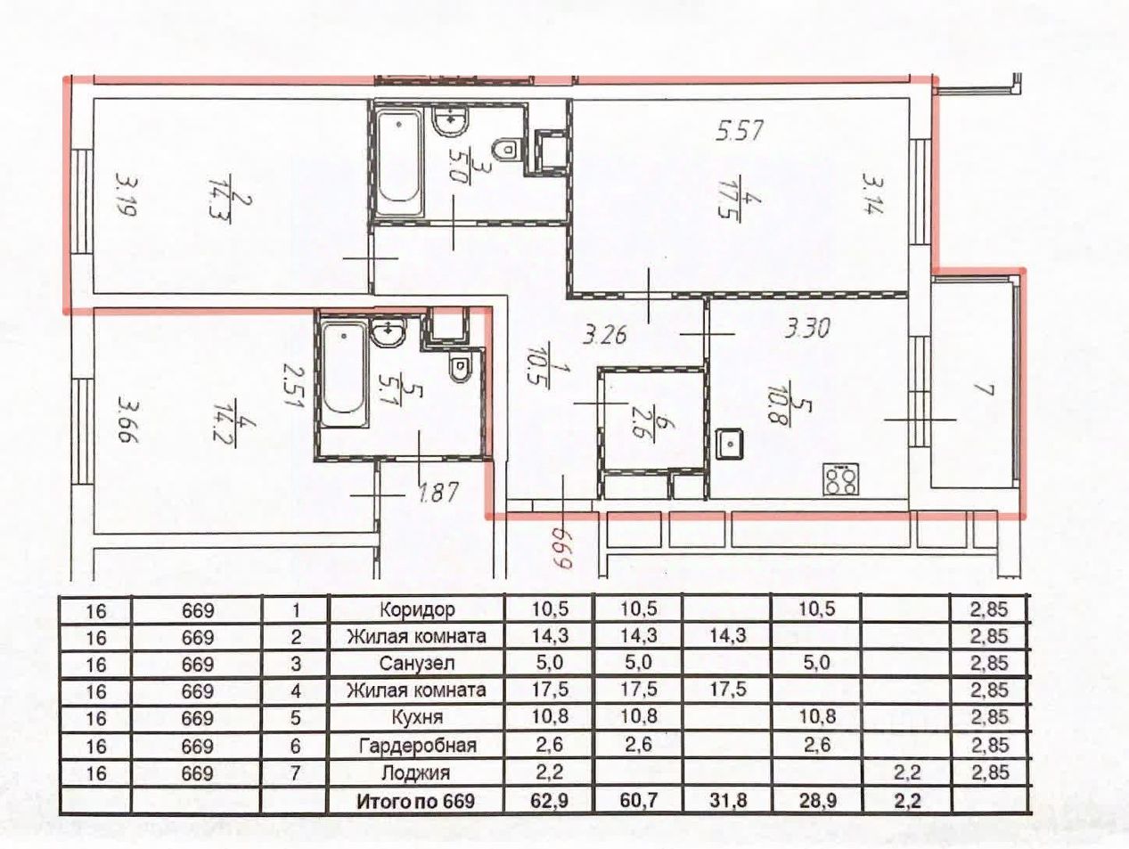
О квартире: 2 смежные комнаты, раздельный санузел, кладовая, незастекленный балкон, окна выходят на две стороны дома. Состояние жилое, после профессионального клининга. Требуется косметический ремонт, при желании комнаты можно разделить. Стены и потолок ровные, квартира сухая и очень теплая, находится в центре дома на 3-м этаже. Планировка и метраж есть на фото.О доме: 1976 г. постройки, кирпичный, хорошая звукоизоляция, паркинг во дворе. Рядом детская площадка, детский сад, магазин, ПВЗ whildberries.В поселке хорошо развита инфраструктура: школа, детские садики, школа искусств, дом культуры, больница муниципальная и частная медклиника, магазины, аптеки и т.д. Также в поселке есть ж/д станция.В квартире никто не прописан.Продается собственником, просмотр возможен в любое время.
46 м2
3 / 5 этаж
Кирпич
- Показать контакты
- Добавить в избранное
46 м2
3 / 5 этаж
Кирпич
3 700 000
79 399 /м2
