2-к, Толмачевский Б. переулок, 5 ст1 Показать на карте
Третьяковская, 5 мин
Москва
''Лаврушинский'' - бескомпромиссный дом с лучшими видами на Кремль. Благодаря расположению всего в одном километре от Кремля, своей высоте и малоэтажной окружающей застройке, из квартир открываются поразительные прямые виды на главные достопримечательности центра Москвы, включая храм Христа Спасителя и собор Василия Блаженного. Расположение в глубине квартала, посередине парка, дает удивительное для центра ощущение тишины и простора.На закрытой территории находится самый большой на элитном рынке собственный ландшафтный парк площадью 1,4 га с фонтаном, ручьём, зонами для воркаута и тихого отдыха. KIDS LAB: развивающая детская площадка на улице и игровая комната в помещении. FIT LAB: фитнес-клуб с 25-метровым бассейном, beauty room, доступные только для жителей.В проекте уникальный выбор квартир с просторными балконами, пентхаусов с террасами, басcейнами и каминами, максимальными видовыми характеристиками, а также роскошных вилл. Всего - 153 квартиры и 101 продуманное планировочное решение. Высота потолков составляет от 3,5 до 8,25 м. В доме предусмотрен 2х-уровневый паркинг на 279 машино-места.В доме предусмотрен полный комплекс систем комфорта, включающий приточно-вытяжную вентиляцию с тонкой фильтрацией с принципом забора воздуха с высоты 50 метров для повышения продолжительности жизни, отдельный сервисный лифт для обслуживающего персонала и другие современные системы.
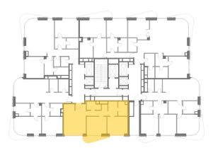
128 м2
7 / 14 этаж
Монолит
- Показать контакты
- Добавить в избранное
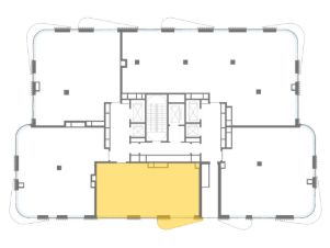
128 м2
7 / 14 этаж
Монолит
510 710 000
3 989 922 /м2
Новостройка,
дом сдан
дом сдан
